!!Preissenkung !! Gewerbeobjekt für Büro oder Praxis in Airportnähe zu verkaufen
Gewerbe zum kaufen in 01108 Dresden
PLZ /Ort:
Kaufpreis:
Gesamtfläche:
Gesamtfläche:
Flächen
Nutzfläche:
49,00 m²
Gesamtfläche:
375,00 m²
Grundstücksfläche:
1.410,00 m²
vermietbare Fläche:
375,00 m²
Preise
Kaufpreis:
580.000,00 €
Vermittl.-Provision:
7,14%
Objektbeschreibung
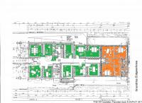
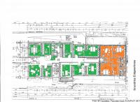
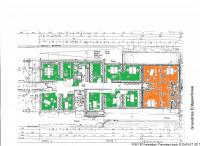
Im Objekt befinden sich insgesamt 16 Wohneinheiten und 2 Gewerbeeinheiten sowie 17 Tiefgaragenstellplätze. Beide Gewerbeeinheiten wurden
baulich miteinander verbunden. Ein gesonderter Zugang zur Einheit C1 wäre möglicherweise umsetzbar. Laut Unterlagen gehören 287,22 m² zur Gewerbeeinheit A7 sowie 88,62 m² zur Gewerbeeinheit C1. Damit ergibt sich folgende Gesamtfläche: 375,84 m².
Zwei getrennte Sanitäranlagen / Teeküchen sind vorhanden, so kann A7 und C1 voneinander separat betrieben werden beziehungsweise vermietet werden.
Im Kellergeschoss befinden sich weitere Räume, die zur Gewerbeeinheit A7 dazu gehören, wie das Archiv, ein Flur und ein Sozialraum. Alle Räume ergeben dann eine Nutzfläche von ca. 49 m².
5 Stellplätze auf Straßenniveau vor dem Haus und 1 Tiefgaragenstellplatz gehören auch zur Gewerbeeinheit A7 und C1.
Das Objekt befindet sich außerhalb der Einflugschneise des Flugverkehrs. Abhängig von den Wetterbedingungen kann es zu Fluggeräuschen kommt.
Vorstellbar wäre für die gesamte Einheit eine Nutzung als Bürofläche, Atelier, Praxis oder anderes nichtstörendes Gewerbe etc.
Das Flurstück mit 574 m² und 836 m² ist mit einem dreigeschossigen Wohn- und
Geschäftshaus mit ausgebautem Dachgeschoss bebaut. Dabei besteht der Komplex aus den Gebäudeteilen A und B, die über den eingeschossigen Bürotrakt verbunden sind. Das Gebäude wurde 1995/1996 errichtet. Das Gebäude ist voll unterkellert. Unter dem Bürotrakt befindet sich die Tiefgarage.
Es bestände auch die Möglichkeit, nach Rücksprache mit dem Bauamt, aus der Büroeinheit 2 abgeschlossene Wohneinheiten zu realisieren, hierzu ist es aber Notwendig eine Nutzungsänderung zu beantragen. Die Räume sind im Objekt alle Ebenerdig zugänglich bis auf die Räume im Kellergeschoss.
Lage
Das Grundstück befindet sich innerhalb eines im Zusammenhang bebauten Ortsteiles und ist mit einem Wohn- und Geschäftshaus bebaut, welches in 16 Wohneinheiten und 2 Gewerbeeinheiten aufgeteilt wurde. Zudem befinden sich noch 17 Tiefgaragenstellplätze in der Tiefgarage.
Im Flächennutzungsplan der Stadt Dresden wird das Gebiet, in dem sich das Objekt befindet, als Wohnbaufläche mit geringer Wohndichte ausgewiesen.
Ausstattung
Die Räume im Objekt sind Ebenerdig zu erreichen.
Sonstige Angaben
HINWEIS:
Der Eigentümer hat dem Büro Beyer Immobilien die Immobilie zur Vermarktung in die Hand gegeben. Auf Wunsch des Eigentümers und aus formellen Gründen bitten wir ausdrücklich von Direktkontakten abzusehen und Besichtigungstermine sowie Informationsgespräche ausschließlich über unser Büro zu vereinbaren.
Unser Exposé ist streng vertraulich zu behandeln. Eine Weitergabe dieses Angebotes, einschließlich aller Unterlagen und Angaben an Dritte, ist nur mit ausdrücklicher Genehmigung durch das Büro Beyer Immobilien zulässig.
Jegliche unbefugte Weitergabe unseres Vermietungs- oder Verkaufsangebotes an Dritte verpflichtet zum
Schadenersatz in Höhe der vollen Courtage.
Bitte beachten Sie, dass die von uns genannten Informationen und Angaben zum Objekt ausdrücklich unverbindlich und nur zur Vorabinformation bestimmt sind. Eine Haftung für die Richtigkeit oder Vollständigkeit dieser Objektangaben übernehmen wir daher nicht.
Alle Immobilienangebote sind freibleibend und vorbehaltlich Irrtümer, Zwischenverkauf und
Zwischenvermietung oder sonstiger Zwischenverwertung.
GELDWÄSCHE: Als Immobilienmaklerunternehmen ist die Beyer Immobilien nach § 2 Abs. 1 Nr.14 und § 11 Abs. 1,2 Geldwäschegesetz (GwG) dazu verpflichtet, bei der Begründung einer Geschäftsbeziehung die Identität des Vertragspartners festzustellen und zu überprüfen, sobald ein ernsthaftes Interesse an der Durchführung des Immobilienkaufvertrages besteht. Hierzu ist es erforderlich, dass wir nach § 11 Abs. 4 GwG die relevanten Daten Ihres Personalausweises festhalten. Bei einer juristischen Person benötigen wir eine Kopie des Handelsregisterauszugs, aus welchem der wirtschaftlich Berechtigte hervorgeht. Das Geldwäschegesetz sieht vor, das der Makler die Unterlagen fünf Jahre aufbewahren muss. Als unser Vertragspartner haben Sie auch eine Mitwirkungspflicht nach § 11 Abs. 6 GwG.
UNSER SERVICE FÜR SIE ALS EIGENTÜMER:
Sie möchten den Verkehrswert Ihres Grundstückes wissen oder Ihre Immobilie verkaufen?
Mit 30 jähriger Erfahrung sind wir erfolgreich im Verkauf (Vermietung) und Vermarktung von Immobilien in Dresden, Langebrück und Umgebung sowie auch die Standorte Ihrer Immoblien.
Kartenansicht
Gewerbeimmobilien Dresden
Unter !!Preissenkung !! Gewerbeobjekt für Büro oder Praxis in Airportnähe zu verkaufen findet sich diese Immobilie in der Datenbank. Weitere Immobilienanzeigen finden sich auf der Seite Dresden. Weitere Immobilien sind unter dem Landkreis Dresden inseriert worden.
Weitere Inserate befinden sich überregional in Sachsen. Der Anbieter BEYER Immobilien Dresden Ansprechpartner René Sodeik, Bruhmstr. in 01465 Dresden-Langebrück hat noch weitere Objekte in der NewHome Datenbank inseriert.
Synonyme zur Suche Dresden Gewerbeimmobilien:
Industrie-Immobilien Dresden, Dresden Immobilien für Gewerbe

