repräsentative Büroräume in ländlicher Gegend - Langenau
Gewerbe zum mieten in 09618 Brand-Erbisdorf
Strasse:
PLZ /Ort:
Kaltmiete:
Gesamtfläche:
Gesamtfläche:
Flächen
Gesamtfläche:
191,00 m²
Preise
Kaltmiete:
1.300,00 €
Warmmiete:
1.695,00 €
Nebenkosten:
370,00 €
Stellplatz (Miete):
25,00 €
Kamin
Gartennutzung
Kabel/Sat/TV
Wasch/Trockenraum
Objektbeschreibung
Arbeiten in ruhiger Lage wie in einem Schloss.
Diese repräsentativen Büroräume stehen zur sofortigen Anmietung.
Hochwertig, kernsanierte Anlage die keine Wünsche offen lässt.
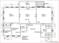
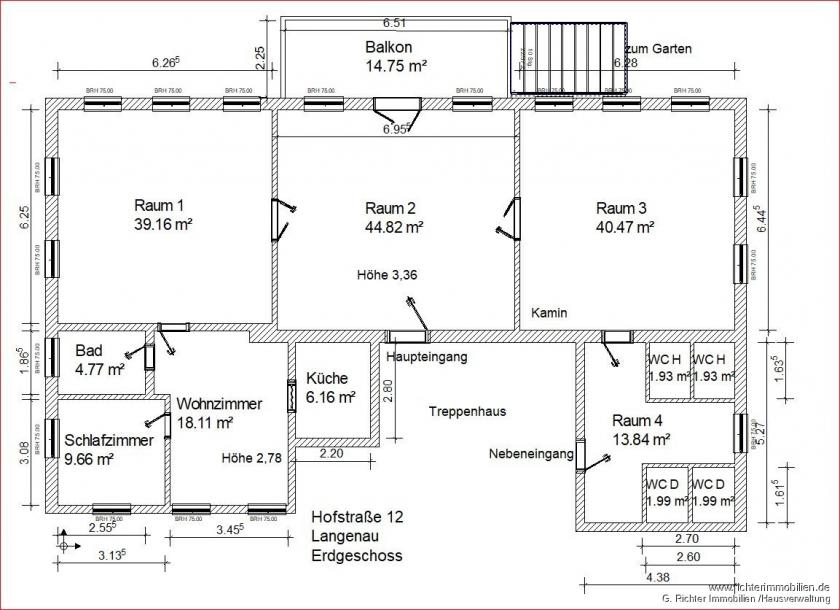
Drei große Büroräume. Ein Raum mit Kamin und Zugang zum großen Balkon.
Der Balkon führt wiederum zu den Kfz-Stellplätzen.
In allen Räumen wurde Laminatboden verlegt.
Ein großer Raum muss noch renoviert werden. Hier können Ihre Wünsche berücksichtigt werden.
Eine zuletzt als 2-Zimmer Wohnung genutzte Flächen können weiterhin zu Wohnzwecken verwandt wie auch zu Büroräumen umgewandelt werden.
Es stehen je 2 Herren-WC und 2 Damen-WC zur Verfügung
Eine Solaranlage zur Warmwasserbereitung ist unterstützend zur Warmwasseraufbereitung installiert und spart somit Betriebskosten.
Lage
Langenau ist ein Ortsteil der Großen Kreisstadt Brand-Erbisdorf in Sachsen.
In Brand-Erbisdorf sind alle Schulen vertreten, Grundschule, Oberschule und Gymnasium.
Gute Busverbindungen nach – Brand-Erbisdorf – Freiberg oder Richtung Eppendorf / Chemnitz.
10 km bis zur großen Kreisstadt Freiberg, 32 km bis Chemnitz und 47 km bis Dresden.
Kartenansicht
Gewerbeimmobilien Brand-Erbisdorf
Unter repräsentative Büroräume in ländlicher Gegend - Langenau findet sich diese Immobilie in der Datenbank. Auf der Seite Brand-Erbisdorf sind weitere passende Immobilien zu finden. Weitere Immobilien sind unter dem Landkreis Mittelsachsen inseriert worden.
Weitere Inserate befinden sich überregional in Sachsen. Der Anbieter G. Richter Immobilien / Imseri Facility Management Ansprechpartner Uwe Richter, Leipziger Straße in 09599 Freiberg hat noch weitere Objekte in der NewHome Datenbank inseriert.
Synonyme zur Suche Brand-Erbisdorf Gewerbeimmobilien:
Industrie-Immobilien Brand-Erbisdorf, Brand-Erbisdorf Immobilien für Gewerbe

