Gewerbehalle im Industriegebiet (GI) von Uelsen – flexibel nutzbar & sofort verfügbar
Gewerbe zum mieten in 49843 Uelsen
PLZ /Ort:
Kaltmiete:
Gesamtfläche:
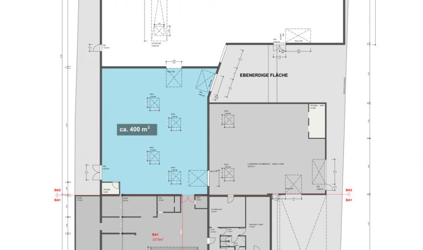
Flächen
Nutzfläche:
400,00 m²
Objektbeschreibung
Diese vielseitig nutzbare Gewerbehalle befindet sich im ausgewiesenen Industriegebiet (GI) von Uelsen und bietet optimale Voraussetzungen für unterschiedlichste betriebliche Anforderungen. Durch die Lage im Gewerbegebiet ist ein Betrieb rund um die Uhr (24/7) problemlos möglich.
Flächenangebot
Ca. 400 m² Hallenfläche
Ausstattung & Besonderheiten
- Zugang zur Halle über ein elektrisches Sektionaltor sowie über eine separate Tür
- Befahrbarkeit der Halle mit dem Pkw möglich
- Torabmessungen: ca. 4,00 m Breite x 3,00 m Höhe
- Ebenerdige Hallenfläche
- Hallenhöhe bis Unterkante der Binder ca. 4,00 m, ansonsten ca. 4,50 m
- Lkw-Zufahrt und -Andienung problemlos möglich
- Ausreichend Park- und Rangierflächen vorhanden
Bei Bedarf kann zusätzlich Bürofläche geschaffen bzw. integriert werden.
Nutzungsmöglichkeiten
Die Hallenfläche kann ganz individuell genutzt und an die jeweiligen betrieblichen Anforderungen angepasst werden. Ideal geeignet für Lager, Logistik, Handwerk, Produktion, Industrie oder Handel.
Mietkonditionen
- Flexible und nutzerfreundliche Vertragslaufzeiten
- Kaltmiete auf Anfrage
- Frei ab sofort
Lage & Erreichbarkeit
- Direkte Anbindung an die B403
- Gute Erreichbarkeit der A30 und A31
- Schnelle Anbindung an die niederländische Grenze
- Sehr gute Erreichbarkeit für Lkw- und Lieferverkehr
Lage
Die Gemeinde Uelsen liegt im Landkreis Grafschaft Bentheim, unweit der niederländischen Grenze, und zeichnet sich durch ihre strategisch günstige Lage und ausgezeichnete Infrastruktur aus.
Uelsen ist über die Bundesstraße B403 und nahegelegene Autobahnen (A30 und A31) gut erreichbar. Diese bieten schnelle Verbindungen zu den Wirtschaftszentren in der Region sowie nach Deutschland und in die Niederlande.
Regionale Busverbindungen sorgen für eine gute Erreichbarkeit innerhalb der Grafschaft Bentheim.
Die Nähe zur niederländischen Grenze macht Uelsen besonders interessant für grenzüberschreitende Geschäftsaktivitäten.
Uelsen bietet eine wachstumsorientierte Umgebung mit einer guten Mischung aus Gewerbe, Handel und Dienstleistung. Lokale Unternehmen profitieren von einer stabilen Wirtschaft, niedrigen Gewerbesteuern und einer gut vernetzten Geschäftsgemeinschaft.
Einkaufsmöglichkeiten, Banken, Gastronomie, Schulen/Kindergärten und Dienstleister befinden sich in unmittelbarer Nähe.
Die Region verfügt über qualifizierte Fachkräfte und ein hohes Potenzial an Arbeitskräften.
Uelsen punktet mit einer idyllischen Umgebung, zahlreichen Freizeitangeboten und einem familienfreundlichen Charakter. Attraktive Wohnmöglichkeiten machen die Region auch für Mitarbeiter interessant.
Mit ihrer zentralen und zugleich naturnahen Lage ist Uelsen der ideale Standort für Gewerbebetriebe, die Flexibilität, Erreichbarkeit und Wachstumspotenzial suchen.
Sonstige Angaben
Energieausweis ist in Bearbeitung.
Widerrufsbelehrung für Verbraucher
Sie haben das Recht, binnen vierzehn Tagen ohne Angabe von Gründen diesen Vertrag zu widerrufen. Die Widerrufsfrist beträgt vierzehn Tage ab dem Tag des Vertragsabschlusses.
Um Ihr Widerrufsrecht auszuüben, müssen Sie uns
RE/MAX Immobilien Grafschaft Bentheim
Veldhausener Str. 34
49828 Neuenhaus
Tel. 05941 – 98 99 00
Fax. 05941 – 98 99 029
E-Mail info@remax-grafschaft.de
mittels einer eindeutigen Erklärung (z.B. ein mit der Post versandter Brief, Telefax oder E-Mail) über Ihren Entschluss, diesen Vertrag zu widerrufen, informieren.
Zur Wahrung der Widerrufsfrist reicht es aus, dass Sie die Mitteilung über die Ausübung des Widerrufsrechts vor Ablauf der Widerrufsfrist absenden.
Folgen des Widerrufs
Wenn Sie diesen Vertrag widerrufen, haben wir Ihnen alle Zahlungen, die wir von Ihnen erhalten haben, unverzüglich und spätestens binnen vierzehn Tagen ab dem Tag zurückzuzahlen, an dem die Mitteilung über Ihren Widerruf dieses Vertrags bei uns eingegangen ist. Für diese Rückzahlung verwenden wir dasselbe Zahlungsmittel, das Sie bei der ursprünglichen Transaktion eingesetzt haben, es sei denn, mit Ihnen wurde ausdrücklich etwas anderes vereinbart; in keinem Fall werden Ihnen wegen dieser Rückzahlung Entgelte berechnet.
Haben Sie verlangt, dass die Dienstleistungen während der Widerrufsfrist beginnen soll, so haben Sie uns einen angemessenen Betrag zu zahlen, der dem Anteil der bis zu dem Zeitpunkt, zu dem Sie uns von der Ausübung des Widerrufsrechts hinsichtlich dieses Vertrags unterrichten, bereits erbrachten Dienstleistungen im Vergleich zum Gesamtumfang der in Vertrag vorgesehenen Dienstleistungen entspricht.
Sämtliche Angebote sind freibleibend und basieren auf Informationen, die der Eigentümer erteilt hat; eine Haftung für deren Richtigkeit und Vollständigkeit kann deshalb nicht übernommen werden. Zwischenverkauf bzw. -vermietung bleibt dem Eigentümer vorbehalten.
Kartenansicht
Gewerbeimmobilien Uelsen
Unter Gewerbehalle im Industriegebiet (GI) von Uelsen – flexibel nutzbar & sofort verfügbar findet sich diese Immobilie in der Datenbank. Mehr Inserate sind unter dem folgenden Suchergebnis zu finden: Uelsen. Weitere Immobilien sind unter dem Landkreis Grafschaft Bentheim inseriert worden.
Das Bundesland Niedersachsen ist die überregionale Zuordnung für dieses Immobilieninserat. Der Anbieter RE/MAX Grafschaft Bentheim - Frank grote Hölmann eK Ansprechpartner Frank grote Hölmann, Veldhausener Straße 34 in 49828 Neuenhaus hat noch weitere Objekte in der NewHome Datenbank inseriert.
Synonyme zur Suche Uelsen Gewerbeimmobilien:
Industrie-Immobilien Uelsen, Uelsen Immobilien für Gewerbe

