Grundstück für die Errichtung einer Pflegeeinrichtung / betreutes Wohnen mit Tagespflege / oder einer Wohnanlage *** mit Altbestand
Grundstück zum kaufen in 54550 Daun
PLZ /Ort:
Kaufpreis:
Grundstücksfläche:
Flächen
Grundstücksfläche:
4.108,00 m²
Preise
Kaufpreis:
535.000,00 €
Vermittl.-Provision:
7,14 % incl. MwSt.
Objektbeschreibung
Das noch teilweise mit einem Altbestand (Lagerhallen) bebaute Grundstück, liegt in einem Mischgebiet, mit überwiegend wohnwirtschaftlich genutzten Objekten, Mehrfamilien- und Einfamilienhäusern.
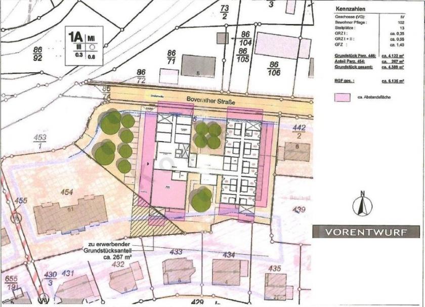
Bebaubar lt. vorhabenbezogenen Bebauungsplan Pfaffenborn, mit einer Pflegeeinrichtung, Tagespflege in Kombination mit betreutem Wohnen, Servicewohnen alternativ auch mit Wohngruppen.
Wohn- und Nutzfläche ca. 3.290 qm
3-geschoßig bebaubar
Sämtliche Medien liegen bereits an dem Grundstück.
Lage
Eingebettet in ein bestehendes Wohngebiet, an der Boverather Straße.
Ausstattung
Grundstück im Mischgebiet, mit Altbestand.
Kartenansicht
Grundstücke Daun
Der Titel dieser Seite lautet: Grundstück für die Errichtung einer Pflegeeinrichtung / betreutes Wohnen mit Tagespflege / oder einer Wohnanlage *** mit Altbestand. Weitere Immobilienanzeigen finden sich auf der Seite Daun.
Der Landkreis Vulkaneifel hat ähnliche Immobilien aufgelistet. Geografisch kann dieses Objekt dem Bundesland Rheinland-Pfalz zugeordnet werden. Der Inserent Wohn Konzept Immobilien Ansprechpartner Detlev Schöttelndreier, Postfach 61 02 03 in 30602 Hannover hat noch weitere Immobilien bei NewHome inseriert.
Synonyme zur Suche Daun Grundstücke:
Daun Grundstücksanzeigen, Grundstücks-Angebote Daun, Grundstück Daun

