Kreta, Plaka Elounda: Grundstück mit Bauvorabgenehmigung und atemberaubendem Meerblick zu verkaufen
Grundstück zum kaufen in 720 5 Plaka bei Elounda
Strasse:
PLZ /Ort:
Kaufpreis:
Grundstücksfläche:
Flächen
Grundstücksfläche:
6.400,00 m²
Preise
Kaufpreis:
1.200.000,00 €
Vermittl.-Provision:
2,48 % (inklusive MwSt.) vom Verkaufspreis
Objektbeschreibung
Baugrundstück am Meer von 6.400 m² schön gelegen am Hang der Küstenhügel nordöstlich von Plaka, Elounda, nur etwa 90 Meter vom Meer entfernt.
Aufgrund seiner Hanglage erlaubt das Grundstück einen ungehinderten Panoramablick auf das Meer, die berühmte Insel Spinalonga, die Berge und atemberaubende Mond- und Sonnenaufgänge.
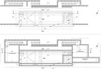
Es verfügt über die Baurechte für ein oder mehrere Häuser mit einer Fläche von bis zu 248 m², auf einer oder zwei Etagen, plus Keller und Dachboden.
Die architektonische Planung wurde bereits durchgeführt und eine Bauvorabgenehmigung/Architektenplanung für eine wunderschöne zweistöckige Luxusvilla von bis zu 242 m² mit einem Swimmingpool von bis zu 55 m² und einem Whirlpool wurde erteilt.
Strom-, Wasser- und Telefonanschlüsse mit Breitband-Internet sind vor Ort verfügbar.
Das Grundstück verfügt über einen einfachen Zugang zur Straße, die zum Küstendorf Plaka führt.
Das Dorf und der schöne Kiesstrand von Plaka sind nur etwa 2 km entfernt.
Der beliebte Touristenort Elounda ist ca. 7 km entfernt.
Die Provinzhauptstadt Agios Nikolaos ist gut erreichbar.
Plaka ist ein altes Fischerdorf, das heute ein beliebtes Touristenziel ist. Gegenüber von Plaka liegt die historische Insel Spinalonga mit ihrer alten venezianischen Festung. Im Küstendorf gibt es viele Restaurants und Geschäfte. Der weiße Kieselstrand hat kristallklares Wasser und gilt als der beste in der Gegend von Elounda.
Elounda war ein kleines Fischerdorf an der Mirabello-Bucht auf der Insel Kreta. Obwohl die Fischerei immer noch einen großen Teil des Lebens in dieser sehr malerischen Gegend ausmacht, hat sich der Tourismus zum Hauptwirtschaftszweig von Elounda entwickelt. Es ist Teil der Gemeinde Agios Nikolaos. Es ist bei europäischen Touristen beliebt und verfügt über viele Hotels, darunter mehrere 5-Sterne-Hotels. Elounda ist auch die der ehemaligen Leprakolonie Spinalonga am nächsten gelegene größere Stadt.
Lage
Plaka ist ein wunderschönes, kleines, traditionelles Fischerdorf in Lasithi, Kreta. Im Dorf gibt es neben Bars und Geschäften eine gute Auswahl an ausgezeichneten Fischtavernen. Es ist Teil der Gemeinde Vrouchas, in der Gemeindeeinheit Agios Nikolaos und nur ca. 5 km entlang der Küstenstraße vom Ferienort Elounda entfernt. Es liegt in der Nähe der historischen Insel Spinalonga, die mit dem Boot erreichbar ist. Die ehemalige venezianische Festung und Leprakolonie zieht viele Besucher aus der ganzen Welt an und wurde kürzlich durch das Bestseller-Buch „The Island“ noch bekannter. Hinter dem Dorf gibt es einen gepflegten Kiesstrand. Außerhalb des Dorfs sind einige größere Hotels und Anlagen mit Ferienwohnungen.
Sonstige Angaben
Wir sind deutsche Immobilienmakler und haben uns spezialisiert auf Immobilien aus Kreta. Neben der Suche nach geeigneten Immobilien auf Kreta für Sie, gehört auch das Organisieren von Besichtigungsterminen auf Kreta zu unserem Portfolio.
Zu jeder Phase Ihres Immobilienerwerbs auf Kreta stehen wir Ihnen zur Seite und begleiten Sie vom ersten Gespräch bis über den Notarvertrag hinaus.
Uns sind Ihre Vorstellungen wichtig, wie zum Beispiel die Lage auf Kreta in Verbindung mit Meerblick, Strandnähe, Sandstrand, Steinhaus oder Swimmingpool. Zusätzlich gibt es wichtige Punkte zu beachten wie die Maße der Zimmer einer Immobilie. In Griechenland und somit auch auf Kreta werden die Wände miteingerechnet, also Außenwand zur Außenwand. Im Gegensatz zu deutschen Immobilien, hier wird von Innenwand zur Innenwand gemessen.
Wir empfehlen Ihnen unbedingt bei der Besichtigung auf Kreta die angegebene Wohnfläche zu überprüfen, da diese stark von deutschen Angaben abweichen kann (Berechnungs-, Wohnflächenverordnung, DIN-Normen) und Nutzflächen eventuell miteingerechnet wurden (Keller, Technikraum, Balkon, Terrasse etc.).
Bitte beachten Sie auch bei Standortangaben zu Immobilienangeboten auf Kreta, dass dies ungefähre Werte sind.
Der griechische Energieausweis (falls erforderlich) liegt bei der Besichtigung vor.
Zum angegebenen Kaufpreis kommen noch Nebenkosten wie Provision, Grunderwerbsteuer, Notargebühren und Anwaltskosten hinzu. Genaueres finden Sie auf unserer Homepage bei INFOS.
Alle über unser Portal angebotenen Immobilien aus Kreta wurden sorgfältig geprüft und übersetzt. Dennoch können sich Fehler einschleichen, so dass wir keine Gewähr auf Richtigkeit der Angaben übernehmen.
Für alle Fragen rund um das Thema - Kauf einer Immobilie oder Grundstück auf Kreta - stehen wir Ihnen gerne zur Verfügung und können weitere Details im Gespräch klären.
Es gelten unsere AGB, die Sie auf unserer Homepage bei AGB und Widerrufsrecht finden.
Kartenansicht
Grundstücke
Der Titel dieser Seite lautet: Kreta, Plaka Elounda: Grundstück mit Bauvorabgenehmigung und atemberaubendem Meerblick zu verkaufen. Diese Anzeige wird geführt unter .
Weitere Miet- und Kaufimmobilien finden sich unter . Das zugewiesene Bundesland dieses Immobilieninserats ist . Der Anbieter Schmidbauer Immobilien Kreta Ansprechpartner Oskar Josef Schmidbauer, Adlerstrasse 2 in 84100 Niederaichbach hat weitere Immobilien inseriert, die Sie weiter unten finden.
Synonyme zur Suche Grundstücke:
Grundstücksanzeigen, Grundstücks-Angebote, Grundstück

