HDA-immo.eu: zeitloses Desgin, moderne Luxus Villa mit 3 Ebenen (ohne Grundstück)
Haus zum kaufen in 29600 Marbella
PLZ /Ort:
Kaufpreis:
Wohnfläche:
Zimmer:
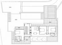
Flächen
Wohnfläche:
315,00 m²
Nutzfläche:
410,00 m²
Preise
Kaufpreis:
810.700,00 €
Energiepass
Art:
Bedarf
Wertklasse:
G
klimatisiert
Gartennutzung
Swimmingpool
Objektbeschreibung
Moderne Luxus-Villa Typ Stephanie (Massivbau/ Steine/ Beton), bestehend aus: Etagen: 3, Schlafzimmer: 4, Badezimmer: 3 plus 1 Gäste-WC, Küche: 1 plus Grill Küche, Wohnzimmer: 1
Esszimmer: 1, Pool: 35m2, Heizung: Fußbodenheizung
Inbegriffen ist die Säuberung und Rodung des Gartens bis 1000m2 Grundstück: Inbegriffen ist die Erstellung einer Gartenumzäunung bis 1000m2 Grundstück.
Extras: Klimaanlage , Domotik System, voll ausgestattete Küche, Eingang Video-Gegensprechanlage , Alarmanlage.
Wir bauen diese Villa in 10 Monaten (nach Erteilung der Baugenehmigung) mit einer 10 Jahre Garantie (auf Strukturmängel). Anpassungen der Grundrisse sind immer möglich. Dieser Preis beinhaltet einen Garten zu einem Maximum von einem 1.000m2.
Extras im Preis enthalten: Sprinkleranlage, Pool, Außendusche , Grillplatz , Eingang, elektrisches Einfahrtstor, LED-Leuchten im Garten, Design, Architekt Kosten, Baugenehmigung und vieles mehr. Dieser Preis wurden auf einem flachen Grundstück berechnet. Preis incl. Umsatzsteuer!
Kartenansicht
Häuser Konstanz
HDA-immo.eu: zeitloses Desgin, moderne Luxus Villa mit 3 Ebenen (ohne Grundstück) ist der Titel dieses Immobilienangebots. Mehr Inserate sind unter dem folgenden Suchergebnis zu finden: Konstanz.
Dem Landkreis Konstanz ist diese Immobilie zugeordnet. Das Bundesland Baden-Württemberg ist die überregionale Zuordnung für dieses Immobilieninserat. Sollte Ihnen dieses Objekt gefallen, so kontaktieren Sie bitte Holiday-Domizile Andalucia UG Ansprechpartner Karl-Heinz Klarmann, Am Oslebshauser Bahnhof 2 in 28239 Bremen.
Synonyme zur Suche Konstanz Häuser:
Konstanz Hausangebote, Haus Konstanz, Häuser Konstanz

