HDA-immo.eu: Luxus Villa (Projekt) auf Ihrem Grundstück in Marbella
Haus zum kaufen in 29600 Marbella
Strasse:
PLZ /Ort:
Kaufpreis:
Wohnfläche:
Zimmer:
Flächen
Wohnfläche:
295,00 m²
Nutzfläche:
375,00 m²
Preise
Kaufpreis:
834.900,00 €
Energiepass
Art:
Bedarf
Wertklasse:
A
Kamin
klimatisiert
Gartennutzung
Swimmingpool
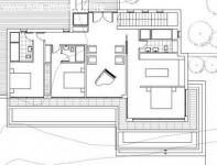
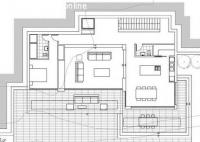
Objektbeschreibung
Luxus Villa als Neubauprojekt. Diese wunderschöne Villa (Projekt) kann noch baulich im geringen Umfang verändert werden. Auch die Ausstattung der Bodenbeläge und der Sanitärobjekte ist noch "variabel".
Das Haus wird innerhalb von 10 Monaten nach Erteilung der Baulizenz in Massivbauweise erstellt.
Ausstattung
Diese Villa verfügt über 4 Schlafzimmer mit jeweils einem Bad en-suite. Der Mster Bedroom verfügt noch über ein separates Ankleidezimmer. Im Obergeschoß ist noch ein Galeriezimmer, welches als Büro oder Musikzimmer genutzt werden kann. Ein großes offenes Wohnzimmer mit Esszimmer und offener Küche. Im Preis enthalten ist der Pool, die Garteneinzäunung mit einem elektrischen Einfahrtstor, die Garten-Bewässerungsanlage, eine Pooldusche. Nicht im Preis enthalten sind Carport oder Garage.
Kartenansicht
Häuser
HDA-immo.eu: Luxus Villa (Projekt) auf Ihrem Grundstück in Marbella ist der Titel dieses Immobilienangebots. Die NewHome Immobiliensuchmaschine mit Miet- und Kaufobjekten hat dieses Objekt der Seite zugeordnet.
Der hat ähnliche Immobilien aufgelistet. Das zugewiesene Bundesland dieses Immobilieninserats ist . Der Inserent Holiday-Domizile Andalucia UG Ansprechpartner Karl-Heinz Klarmann, Am Oslebshauser Bahnhof 2 in 28239 Bremen hat noch weitere Immobilien bei NewHome inseriert.
Synonyme zur Suche Häuser:
Hausangebote, Haus, Häuser

