Können Sie sich ein Leben ohne Nachbarn vorstellen...?
Haus zum kaufen in 75177 Pforzheim
PLZ /Ort:
Kaufpreis:
Wohnfläche:
Zimmer:
Grundstücksfl.:
Flächen
Wohnfläche:
125,00 m²
Nutzfläche:
5,00 m²
Grundstücksfläche:
630,00 m²
Preise
Kaufpreis:
352.340,00 €
Vermittl.-Provision:
4
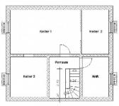
Objektbeschreibung
Schlüsselfertiges Einfamilienhaus (ohne Tapeten u. Teppichboden) mit Baugrundstück in Pforzheim ----------------------------------- Massive Stein-auf-Stein Bauweise ----------------------------------- Bad u. WC raumhoch gefliest u. m. Sanitärobjekten ausgestattet ----------------------------------- inkl. Bauplatz ----------------------------------- inkl. Erdarbeiten ----------------------------------- inkl. Architekt, Statik, Bauantrag ----------------------------------- inkl. Baufertigstellungsversicherung (kein Insolvenzrisiko) ----------------------------------- inkl. Baugewährleistungsversicherung ----------------------------------- inkl. TÜV-Abnahme + Blower Door Test ----------------------------------- KfW - alle Häuser auch als E40 und E60 erhältlich ----------------------------------- Nur Deutsche Markenartikel ----------------------------------- Garantierter Festpreis ----------------------------------- Das Haus auf Bodenplatte mit Bauplatz kostet ? 352.340,- * Das Haus mit Vollunterkellerung mit Bauplatz kostet ? 388.460,- * inkl. Baunebenkosten (Wasser-, Strom-, Abwasseranschluß, Erdentsorgung, Vermessung) ----------------------------------- Gerne planen wir das Haus gem. Ihren Wünschen um oder bieten Ihnen einen anderen Haustyp an ----------------------------------- sämtliche Baustellenbesichtigungen im Enzkreis jederzeit möglich ------------------------------------ möchten Sie unser Musterhaus in Schömberg sehen? -rufen Sie uns an! ----------------------------------- P.S.: Gerne sind wir Ihnen beim Verkauf Ihrer jetzigen Immobilie behilflich... ...
Kartenansicht
Häuser Katharinenthalerhof
Können Sie sich ein Leben ohne Nachbarn vorstellen...? ist der Titel dieses Immobilienangebots. Mehr Inserate sind unter dem folgenden Suchergebnis zu finden: Katharinenthalerhof.
Dem Enzkreis ist diese Immobilie zugeordnet. Geografisch kann dieses Objekt dem Bundesland Baden-Württemberg zugeordnet werden. Sollte Ihnen dieses Objekt gefallen, so kontaktieren Sie bitte ProjektHaus-BW Ltd. & CO. KG Ansprechpartner Paul Schmidt, Karlsruher Str. in 75179 Pforzheim.
Synonyme zur Suche Katharinenthalerhof Häuser:
Katharinenthalerhof Hausangebote, Haus Katharinenthalerhof, Häuser Katharinenthalerhof

