Baugrundstück mit genehmigtem Finca-Projekt in Sa Cruta bei Porto Cristo
Haus zum kaufen in 07560 S´Illot - Cala Morlanda
PLZ /Ort:
Kaufpreis:
Wohnfläche:
Zimmer:
Grundstücksfl.:
Flächen
Wohnfläche:
214,00 m²
Grundstücksfläche:
14.250,00 m²
Preise
Kaufpreis:
390.000,00 €
Gartennutzung
Swimmingpool
Objektbeschreibung
Ihr Traum vom mediterranen Leben - jetzt mit fertiger Baugenehmigung!
Willkommen zu einem außergewöhnlichen Angebot für alle, die den Traum vom eigenen Finca-Anwesen auf Mallorca verwirklichen möchten. Dieses Grundstück mit bereits genehmigtem Bauprojekt bietet die perfekte Grundlage, um eine exklusive Finca nach höchsten Ansprüchen zu realisieren - in ruhiger Naturlage, umgeben von mediterranem Flair.
Objektbeschreibung
Auf einem weitläufigen Grundstück von 14.331,17 m² in Sa Cruta, zwischen den charmanten Orten S’Illot und Porto Cristo, entsteht Ihr persönliches Finca-Paradies.
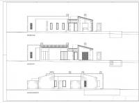
Das Projekt kombiniert traditionelle mallorquinische Architektur mit modernem Wohnkomfort und wurde bereits voll genehmigt - Sie können also sofort mit dem Bau beginnen.
Das geplante Anwesen umfasst eine Wohnfläche von 214 m² und bietet viel Raum für gehobenes Wohnen, Ruhe und Lebensqualität.
Geplante Ausstattung der Finca
Grundstücksgröße: 14.331,17 m²
Wohnfläche: 214 m²
Schlafzimmer: 3 großzügige Schlafzimmer
Badezimmer: 3 exklusive en-suite Badezimmer
Gäste-WC: 1 separates Gäste-WC
Küche: Offene, großzügige Einbauküche mit hochwertigen Geräten
Wohn-/Essbereich: Lichtdurchflutet, mit direktem Zugang zur Terrasse
Pool: 30 m² Pool mit sonniger Terrasse und Weitblick über die Landschaft
(Hinweis: Der angegebene Preis bezieht sich auf das Grundstück inklusive genehmigtem Bauprojekt. Die Kosten für den Bau der Finca sind nicht im Kaufpreis enthalten.)
Lage
Sa Cruta gehört zu den begehrtesten und ruhigsten Regionen im Osten Mallorcas.
Die Finca entsteht in idyllischer Lage - umgeben von Natur, dennoch nur wenige Minuten von Porto Cristo und S’Illot entfernt.
Entfernungen:
Porto Cristo: ca. 5 Minuten
S’Illot / Strände: ca. 7 Minuten
Supermärkte, Restaurants, Schulen und medizinische Versorgung: in unmittelbarer Nähe
Golfplätze & Tennisanlagen: wenige Fahrminuten entfernt
Freizeit & Umgebung
Der nahegelegene Hafen von Porto Cristo lädt zu Spaziergängen, Bootsfahrten oder Abendessen am Meer ein.
Zahlreiche Traumstrände und Buchten in der Umgebung bieten perfekte Bedingungen zum Schwimmen und Sonnenbaden.
Sportfreunde profitieren von mehreren Golf- und Tennisplätzen in der Region.
Sonstige Angaben
Dieses Angebot ist mehr als nur ein Grundstück - es ist der erste Schritt zu Ihrer eigenen Traumfinca auf Mallorca.
Mit einer bereits genehmigten Bauplanung sparen Sie Zeit, Aufwand und Unsicherheit.
Ob als Ferienimmobilie oder Hauptwohnsitz: Dieses Projekt vereint Natur, Ruhe und Luxus in perfekter Balance.
Kartenansicht
Häuser
Baugrundstück mit genehmigtem Finca-Projekt in Sa Cruta bei Porto Cristo ist der Titel dieses Immobilienangebots. Die NewHome Immobiliensuchmaschine mit Miet- und Kaufobjekten hat dieses Objekt der Seite zugeordnet.
Der hat ähnliche Immobilien aufgelistet. Das zugewiesene Bundesland dieses Immobilieninserats ist . Der Inserent Casa d´OR, C.B. Ansprechpartner Chris Laurence West, Apartado de correos 385 in 07680 Porto Cristo hat noch weitere Immobilien bei NewHome inseriert.
Synonyme zur Suche Häuser:
Hausangebote, Haus, Häuser

