Einfamilienhaus in Zell an der Mosel
Haus zum kaufen in 56856 Zell (Mosel)
PLZ /Ort:
Kaufpreis:
Wohnfläche:
Zimmer:
Grundstücksfl.:
Flächen
Grundstücksfläche:
687,00 m²
Preise
Kaufpreis:
249.000,00 €
Vermittl.-Provision:
Bei erfolgreicher Vermittlung ist eine Maklercourtage vom Käufer in Höhe von 3,57% inkl. 19% Mehrwertsteuer zuzahlen.
Objektbeschreibung
Der hier ausgewiesene Verkaufspreis ist Verhandelbar.
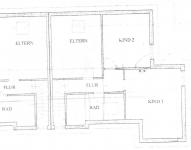
Aussenmaße: 11,63 m x 11,11 m
Wohn/Nutzfläche:174 m²
Dachtyp:Satteldach
incl. Teilunterkellerung
Der Energieausweis für diese Immobilie ist in Arbeit.
Gemütliches Flair im ErdgeschossKerzenschimmer in geschliffenem Kristall. Der Zauber romantischer Musik. Sich zurücklehnen und das Erreichte Revue passieren lassen. Das schöne Gefühl genießen, dass der eigene Stil Maßstab des Ganzen ist.Mit jeder Faser Ruhe spüren. Gedanken nachhängen, Zeit und Raum vergessen. Pläne schmieden und vorwärts denken. Den Tag ausklingen lassen Zu Hause sein.
Raffinesse des Dachgeschosses
Sehr gute Sanitärausstattung im Bad, das Elternschlafzimmer mit Ankleide, Zimmer mit Bodentiefe Fensterelemente und Stil fort.
Die Außengestaltung ist natürlich genauso individuell und exklusiv vom Architekten geplant, wie die Grundrisse und die Innenarchitektur.
Weitere Informationen und Immobilien-Angebote finden Sie auf unserer Homepage unter:
http://www.dongowski-hauskonzepte.de (Rubrik: Immobilien)
Lage
Zell - Stadt der weltbekannten Zeller schwarzen Katz
Zell eine der schönsten Städte an der Mosel
Mit den Namen Mosel verbindet man Geschichte, Kultur und Tradition.
Die Mosel ist die älteste Kulturlandschaft Deutschlands.
Inmitten einer der reizvollsten Landschaften der Mittelmosel, etwa auf halbem Weg zwischen Trier und Koblenz, liegt das Zeller Land mit seinen malerischen Weinorten Pünderich, Briedel, Zell, Alf , Bullay, Neef, St. Aldegund, das Herz zur Mittel-Mosel.
Zell ist bekannt durch seine Weinlagen wie z. B. Zeller Schwarze Katz, Merler Fettgarten und beliebt durch sein vielseitiges Freizeitangebot mit Wandern, Angeln, Tennis, Wassersport wie Schwimmen im Erlebnisbad mit Riesenrutschbahn, Sauna und Whirlpool, Rudern, Camping und Radfahren auf ausgebauten Radwegen.
Die Infrastruktur mit Anbindung zum Flughafen Frankfurt-Hahn und dem ökologisch-modernsten Bahnhof Deutschlands Bullay sowie einer der schönsten und längsten Wasserstraßen Deutschlands mit Verbindung von Frankreich nach Luxemburg, lässt Zell zu einem wirtschaftlichen Zentrum entstehen.
Zell mit ihren Fachgeschäften, Gaststätten, Friseur- und Kosmetik/Wellnesssalons , Sonnenstudio lädt zum Bummeln ein.
Die medizinische Versorgung erfolgt durch Zahnärzte, Allgemeinmediziner, Apotheken, einem Ärztehaus mit Chirurgie, Orthopädie, Allgemeinmedizin, Sanitätsfachgeschäft, Krankenhaus, Gesundheitszentrum mit Heilpraktiker, Ernährungsberatung, Physiotherapie. Im Nachbarort Bullay sind Haut- und Herzspezialisten tätig.
Weinkellereien, Einkaufsmärkte, Kleinunternehmen und Hotels bieten der Bevölkerung Arbeitsplätze.
Kindergarten, Grundschule, Sonderschule für Lernbehinderte sowie Haupt- und Realschule.
Ausstattung
Ausstattung
Badausstattung mit hochwertigen Sanitärobjekten
Fenster mit Wärmeschutzverglasung
Kaminanlage im Wohnzimmer
herrliche offene Küche
Der Energieausweis für diese Immobilie ist in Arbeit.
Erdgeschoss komplett gefliest
Sonstige Angaben
Zwischenverkauf vorbehalten. Die vorstehenden Informationen stammen vom Verkäufer.
Das Kurzexpose´dient als Vorinformation, Rechtsgrundlage ist allein der notariell
beurkundete Kaufvertrag.
Die Weitergabe dieses Angebots an Dritte darf nur mit unserer Zustimmung erfolgen.
Sollte Ihnen dieses Angebot bereits bekannt sein, so bitten wir um schriftliche
Bekanntgabe unter Nennung des Anbieters innerhalb von 5 Tagen nach Erhalt des
Angebots. Sollten wir keine Rückäußerung erhalten, ist unser Nachweis als
Erstnachweis vom Empfänger akzeptiert.
Wir weisen abschließend darauf hin, dass dieses Angebot für den
Erwerber provisionspflichtig ist. Im Erfolgsfall werden wir eine
Käuferprovision in Höhe von 3,57 % (inkl. gesetzlicher MwSt.)
des beurkundeten Kaufpreises in Rechnung stellen, zahlbar bei
Abschluss des Kaufvertrags.
Kartenansicht
Häuser Zell (Mosel)
Einfamilienhaus in Zell an der Mosel ist der Titel dieses Immobilienangebots. NewHome hat dieses Inserat zur Miete und zum Kauf unter Zell (Mosel) eingetragen.
Dem Landkreis Cochem-Zell ist diese Immobilie zugeordnet. Das Bundesland Rheinland-Pfalz ist die überregionale Zuordnung für dieses Immobilieninserat. Sollte Ihnen dieses Objekt gefallen, so kontaktieren Sie bitte Dongowski Hauskonzepte Ansprechpartner Norbert Dongowski, Keltenring Nr. 25 in 56856 Zell-Mosel.
Synonyme zur Suche Zell (Mosel) Häuser:
Zell (Mosel) Hausangebote, Haus Zell (Mosel), Häuser Zell (Mosel)

