Denkmalgeschütztes MFH mit vermietetem Gewerbe + 4 WE´s mit Balkonanlage in Zwickau!
Haus zum kaufen in 08056 Zwickau
Strasse:
PLZ /Ort:
Kaufpreis:
Wohnfläche:
Zimmer:
Grundstücksfl.:
Flächen
Wohnfläche:
504,00 m²
Grundstücksfläche:
390,00 m²
Preise
Kaufpreis:
398.000,00 €
Vermittl.-Provision:
3,57 %, mind. 2.975 EUR, inkl. 19 % MwSt.
Energiepass
Jahrgang:
nicht_noetig
Gebäudeart:
wohn
Gartennutzung
Sauna
Swimmingpool
Objektbeschreibung
Das lt. Denkmalliste im Jahr 1885 erbaute, voll-unterkellerte Mehrfamilienhaus mit Gewerbeanteil steht als typisches Beispiel für die gründerzeitliche Wohnarchitektur Zwickaus unter Denkmalschutz und überzeugt durch seine solide Bauweise.
Das Gebäude wurde im Jahr 1995 durch den damaligen Eigentümer umfassend saniert. Die Sanierung erfolgte in Zusammenarbeit mit einem Generalunternehmer.
Neben der Erneuerung der technischen Anlagen umfasste die Sanierung auch die Modernisierung der Wohnungen und die Instandsetzung der Fassade. Im Zuge dieser Arbeiten wurde zudem das Dach vollständig neu gedeckt, der Dachstuhl erneuert und eine Zwischensparrendämmung eingebracht. Die Balkone wurden lt. Gutachten ca. 2018 erneuert.
Die straßenseitige Fassade sowie die straßenseitigen Holzfenster wurden vor etwa zehn Jahren überarbeitet und neu gestrichen. Der Verkäufer hat außerdem die Malerarbeiten an der rückwärtigen Fassade im Bereich des Treppenhauses sowie das Streichen der rückwärtigen Holzfenster beauftragt, die - sofern erforderlich - vor dem Verkauf noch ausgeführt werden.
Das zugehörige Grundstück ist lt. Grundbuch 390 m² groß.
Die Beheizung der Immobilie erfolgt über eine Zentralheizung, welche mit Gas betrieben wird.
Lage
Die ca. 90.000 Einwohner zählende Stadt Zwickau liegt im Zentrum des westsächsischen Industriegebietes am Nordrand des Erzgebirges. Sie ist die viertgrößte Stadt im Freistaat Sachsen und hat als Oberzentrum einen Einzugsbereich von ca. 480.000 Menschen. Die Stadt blickt zurück auf eine 900-jährige Geschichte und hat Persönlichkeiten wie Robert Schumann, August Horch und Max Pechstein hervorgebracht.
Das Mehrfamilienhaus befindet sich in der Leipziger Straße 40 in Zwickau, einer gut angebundenen und lebendigen Lage mit hohem Entwicklungspotenzial. Die Leipziger Straße zählt zu den wichtigen Verkehrsachsen der Stadt und verbindet das Zentrum mit den nördlich gelegenen Stadtteilen sowie den überregionalen Verkehrswegen. Entlang der Straße finden sich eine gewachsene Mischung aus Wohnhäusern, kleineren Geschäften, Dienstleistungsbetrieben und gastronomischen Angeboten.
Die Anbindung an den öffentlichen Nahverkehr ist sehr gut. In fußläufiger Entfernung liegen mehrere Bus- und Straßenbahnhaltestellen, die schnelle Verbindungen in die Innenstadt und zu den umliegenden Stadtteilen ermöglichen. Über die Bundesstraßen B 93, B 173 und B 175 ist das Grundstück hervorragend in das regionale und überregionale Verkehrsnetz eingebunden; die Autobahnen A 4 und A 72 sind in wenigen Fahrminuten erreichbar. Auch der Hauptbahnhof Zwickau ist bequem zu erreichen und bietet regelmäßige Zugverbindungen unter anderem nach Chemnitz, Leipzig, Dresden und Hof.
Im direkten Umfeld befinden sich zahlreiche Einrichtungen des täglichen Bedarfs, wie Supermärkte, Bäckereien, Apotheken, Schulen und Kindertagesstätten. Grünflächen und Naherholungsgebiete sind ebenfalls nicht weit entfernt. Die Stadt Zwickau verfolgt zudem verschiedene städtebauliche Entwicklungsprojekte entlang der Leipziger Straße, die in den kommenden Jahren zu einer weiteren Aufwertung des Quartiers beitragen sollen - etwa durch neue Begrünung, attraktivere Gehwege und verbesserte Parkmöglichkeiten.
Ausstattung
Die gewerbliche Einheit im Erdgeschoss und im 1. Obergeschoss (zusammen 232 m²) wird seit vielen Jahren von demselben Mieter genutzt. Eine interne Wendeltreppe verbindet beide Etagen, wodurch die Räume funktional miteinander verbunden sind und eine flexible Nutzung ermöglichen. Im Gewerbe befinden sich eine Sauna und ein Whirlpool, welche das Objekt aufwerten.
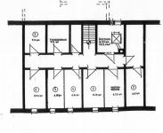
Die Grundrisse im 1. Obergeschoss weichen teilweise von den ursprünglichen Bauplänen ab, da die Flächen an die gewerbliche Nutzung angepasst wurden.
Im 2. Obergeschoss befinden sich zwei Wohnungen (2. OG rechts: 57 m², 2. OG links: 56 m²), die ebenfalls vom selben Mieter angemietet sind.
Die Wohnung im Dachgeschoss links mit einer Fläche von ca. 53 m² m² steht derzeit leer. Der Eigentümer hat die Renovierung dieser Einheit bereits in Auftrag gegeben.
Die Wohnung im Dachgeschoss rechts ist eine Maisonettewohnung mit Wendeltreppe zum Dachspitz hat eine Wohnfläche von ca. 106 m².
Im Dachspitz befinden sich 2 Arbeitszimmer mit Dachfenstern sowie eine Galerie mit Oberlicht.
Alle 4 Wohnungen sind mit Einbauküchen ausgestattet.
Die Jahresnettomiete beträgt derzeit - bei einem Leerstand von einer Wohneinheit - ca. 35.640 EUR. Nach Neuvermietung der Dachgeschosswohnung lässt sich somit ein weiteres Mietsteigerungspotenzial realisieren.
Sonstige Angaben
Bitte nutzen Sie das Kontaktformular, um uns Ihre Fragen bzw. Ihren Besichtigungswunsch mitzuteilen. Wir nehmen schnellstmöglich den Kontakt zu Ihnen auf bzw. senden Ihnen gern ergänzende Unterlagen entsprechend Ihrer Anfrage zu.
Alle Angaben beruhen auf Aussagen der Eigentümer bzw. basieren auf den uns bis dato vorliegenden Unterlagen und erfolgen ohne Gewähr. Irrtum und zwischenzeitlicher Verkauf bleiben vorbehalten. Exposé © 2025, Immobilienbüro Kühn
Kartenansicht
Häuser Zwickau
Denkmalgeschütztes MFH mit vermietetem Gewerbe + 4 WE´s mit Balkonanlage in Zwickau! ist der Titel dieses Immobilienangebots. NewHome hat dieses Inserat zur Miete und zum Kauf unter Zwickau eingetragen.
Dem Landkreis Zwickau ist diese Immobilie zugeordnet. Weitere Anzeigen finden Sie unter Sachsen. Sollte Ihnen dieses Objekt gefallen, so kontaktieren Sie bitte Immobilienbüro Kühn GmbH & Co. KG Ansprechpartner Wolfgang Kühn, Jahnstraße 17 in 08058 Zwickau.
Synonyme zur Suche Zwickau Häuser:
Zwickau Hausangebote, Haus Zwickau, Häuser Zwickau

