Wohnen über Zwei Etagen
Wohnung zum kaufen in 83457 Bayerisch Gmain
PLZ /Ort:
Kaufpreis:
Wohnfläche:
Zimmer:
Flächen
Wohnfläche:
95,00 m²
Nutzfläche:
120,00 m²
Grundstücksfläche:
2.350,00 m²
Preise
Nebenkosten:
160,00 €
Kaufpreis:
179.000,00 €
Vermittl.-Provision:
3,57 % zahlbar vom Käufer
Objektbeschreibung
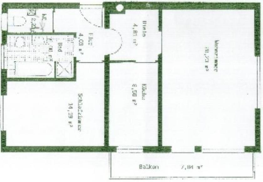
3 Zimmer-Wohnung über zwei Etagen mit ca. 72 m² Wfl. im1.OG. Wohnzimmer, Schlafzimmer und Diele mit Parkettböden, 7 m² großer Westbalkon, Küche neu gefliest, Bad mit Wanne und Dusche, Wc extra. + Appartement mit ca. 23 m² Wfl. im Dachgeschoß mit Dusche und Wc. Die beiden dazugehörenden Abstellräume neben dem Appartement könnten noch ausgebaut werden. Kellerabteil. Die beiden zusammengehörenden Häuser mit je 6 Wohneinheiten wurden im Jahr 1971 in Massivbauweise gebaut und stehen auf 2354 m² Grund. Im Jahr 2007 wurde die Ölzentralheizung erneuert, Objekt Nr. V-504... ...
Kartenansicht
Wohnungen Bayerisch Gmain
Wohnen über Zwei Etagen lautet die Titelzeile dieses Angebots in der NewHome Immobiliensuchmaschine. Auf der Seite Bayerisch Gmain sind weitere passende Immobilien zu finden. Weitere Miet- und Kaufimmobilien finden sich unter Landkreis Berchtesgadener Land. Geografisch kann dieses Objekt dem Bundesland Bayern zugeordnet werden.
Sollte Ihnen dieses Objekt gefallen, so kontaktieren Sie bitte Ansprechpartner Peter Rieder, in.
Synonyme zur Suche Bayerisch Gmain Wohnungen:
Bayerisch Gmain Wohnung, Wohnungsanzeigen Bayerisch Gmain

