KAPITAL ANLAGE: Schöne 2-Zimmer mit Balkon nahe Tegeler See
Wohnung zum kaufen in 13507 Berlin
Strasse:
PLZ /Ort:
Kaufpreis:
Wohnfläche:
Zimmer:
Flächen
Wohnfläche:
56,21 m²
Gesamtfläche:
56,21 m²
Preise
Kaufpreis:
169.000,00 €
Hausgeld:
159,25 €
Vermittl.-Provision:
Errechnet durch die Multiplikation des notariell beurkundeten Kaufpreises mit 7,14% inkl. 19% MwSt.
Energiepass
Art:
Verbrauch
E-Verbrauchskennw.:
128.10
Objektbeschreibung
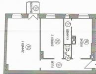
Die Wohnung befindet sich im 2. OG des Gebäudes und ist ideal geschnitten mit 2 Zimmern und einem Balkon.
Letzte Sanierung des Gebäudes - 1992
Die Wohnung ist seit 2013 vermietet
Netto Kaltmiete : 454,25 €/Monat - 5.451,-- €/Jahr
Hausgeld: 159,25 €
Rendite: 3,23 %
----------------------------------
This apartment is located on the 2nd floor of the building. The apartment is well cut with 2 rooms and a balcony.
Last renovation of the building - 1992
The flat is since 2013 tenanted.
net cold rent : 395 eur - 4.740€/year
Running cost: 185€
Yield: 2,8%
Lage
Der Infrastruktur von Tegel ist fantastisch.
Ein großes Shopping-Center (Hallen am Borsigturm) mit Kino, Erlebnisgastronomie, Supermärkten und diversen Einkaufsmöglichkeiten, sowie internationale Restaurants sind ist zu Fuß erreichbar.
Anfang Juni wird der Grundstein für das neue Tegel-Center gelegt, welches in Zukunft diesen Standort noch mehr aufwerten wird.
Der nahe gelegene Tegeler See lädt zum Schwimmen, Spazieren gehen und Minigolfen ein.
Die Verkehrsanbindung ist durch die unweit gelegene U6 Station Alt-Tegel und die Stadtautobahn gewährleistet.
--------------------------------------
The infrastructure of Tegel is fantastic: a large shopping center (halls at the Borsigturm) with cinema, international restaurants, supermarkets and various shops within walking distance.
At the beginning of June, the foundation will be laid for the new Tegel Center, which will enhance this location even more in the future.
The nearby Tegeler See is ideal for swimming, walking and mini golf.
The transport connection is ensured by the nearby U6 station Alt-Tegel and the city motorway
Ausstattung
- Doppelkasten Holzfenster
- Gepflegtes Objekt
- Balkon
--
- double box wooden windows
- Well maintained object
- Balcon
Sonstige Angaben
Es liegt ein Energieverbrauchsausweis vor.
Endenergieverbrauch beträgt 128.10 kwh/(m²*a).
Wesentlicher Energieträger der Heizung ist Erdwärme.
Alle Angaben beruhen auf uns vorliegenden Informationen des Auftraggebers nach besten Wissen und Gewissen.
Weltweit vertrauen Eigentümer und Käufer CENTURY 21, dem Immobilienmaklernetzwerk, welches bereits seit mehr als 40 Jahren für die erfolgreiche Vermittlung von Immobilien steht.
In Frankreich, USA und Belgien ist CENTURY 21 bereits Marktführer im Verkauf von Immobilien oder der Vermietung von Eigentum.
Heute begeistern über 100.000 CENTURY 21 Immobilienmakler täglich mit ausgezeichnetem Service in über 7.000 Büros.
Wir helfen Ihnen gern auf Deutsch, English, Französisch, Hindi, Japanisch, Spanish, Russisch und Italienisch.
**BV**
Kartenansicht
Wohnungen Berlin
KAPITAL ANLAGE: Schöne 2-Zimmer mit Balkon nahe Tegeler See lautet die Titelzeile dieses Angebots in der NewHome Immobiliensuchmaschine. Auf der Seite Berlin sind weitere passende Immobilien zu finden. Weitere Miet- und Kaufimmobilien finden sich unter Landkreis Berlin. Das Bundesland Berlin ist die überregionale Zuordnung für dieses Immobilieninserat.
Sollte Ihnen dieses Objekt gefallen, so kontaktieren Sie bitte Century 21 City Center Ansprechpartner Jules Blatrix , Große Hamburger Straße 19a in 10115 Berlin.
Synonyme zur Suche Berlin Wohnungen:
Berlin Wohnung, Wohnungsanzeigen Berlin

