Schnucklige, 1-Zi.-Whg. mit EBK, Balkon und Stellplatz in Freiberg a.N. zu verkaufen
Wohnung zum kaufen in 71691 Freiberg am Neckar
PLZ /Ort:
Kaufpreis:
Wohnfläche:
Zimmer:
Flächen
Wohnfläche:
40,00 m²
Preise
Kaufpreis:
132.000,00 €
Kaufpreis / qm:
3.300,00 €
Vermittl.-Provision:
3,57% Käufercourtage inkl MwSt
Energiepass
Art:
Bedarf
Gültig bis:
05-2028
Endenergiebedarf:
177
EP inkl. Warmwasser:
ja
Kabel/Sat/TV
Objektbeschreibung
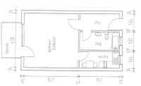
Zu verkaufen ist eine schnucklige, schöne helle 1 Zimmerwohnung in Freiberg am Neckar. Ausgestattet ist die Wohnung, die sich im 2.Obergeschoss befindet mit Einbauküche, Balkon und Kfz-Stellplatz. Die Wohnung wurde aufwendig renoviert und modernisiert. In den letzten Jahren wurde das Bad komplett erneuert, die Fenster und die Rollläden getauscht, eine hochwertige neue Wohnungseingangstüre installiert, ebenso wurde die Elektroinstallation überarbeitet. Sämtliche Renovierungs- und Modernisierungsmaßnahmen wurden von qualifizierten Fachfirmen durchgeführt.
Lage
Ruhige Wohngegend am Ortsrand. Öffentliche Verkehrsmittel und Dienstleistungen des täglichen Bedarfs sind bequem fußläufig in wenigen Gehminuten zu erreichen.
Ausstattung
- Balkon
- Einbauküche
- Keller
- KFZ-Stellplatz
- Tageslichtbad mit Dusche und WC
Sonstige Angaben
WICHTIG:
Der Kaufpreis für den Kfz-Stellplatz ist im Gesamtkaufpreis bereits enthalten.
Die Wohnung wird vom Eigentümer selbst genutzt und ist daher nicht vermietet!
Bitte nur schriftliche Direktanfragen über das Immobilienportal mit Angabe Ihres vollständigen Namens, derzeitigen Anschrift, Telefonnummer (zwecks Terminvereinbarung) und offizieller Mailadresse.
HINWEIS:
Mit Absenden Ihrer Anfrage erteilen sie uns Auftrag zur Immobilienvermittlung und bestätigen, dass sie über ihr Widerrufsrecht (untenstehend) belehrt wurden. Die Käufervermittlungscourtage in Höhe von 3,57% vom notariell beurkundeten Kaufpreis inkl. derzeit geltender MwSt. ist bei Kaufvertragsabschluss zur Zahlung fällig. Wir sind für den Eigentümer in gleicher Provisionshöhe tätig. Es liegt uns vom Eigentümer ein qualifizierter Alleinauftrag mit Verweisklausel vor.
Sämtliche Absprachen, Terminvereinbarungen, Kaufpreisverhandlungen oder sonstige Korrespondenz sind ausnahmslos über unser Büro zu führen.
Da wir vorstehend genannte Objektangaben nicht selbst ermitteln, sondern übermittelt erhalten, können wir für die Richtigkeit und Vollständigkeit keine Haftung übernehmen.
Kartenansicht
Wohnungen Freiberg am Neckar
Schnucklige, 1-Zi.-Whg. mit EBK, Balkon und Stellplatz in Freiberg a.N. zu verkaufen lautet die Titelzeile dieses Angebots in der NewHome Immobiliensuchmaschine. NewHome hat dieses Inserat zur Miete und zum Kauf unter Freiberg am Neckar eingetragen. Weitere Miet- und Kaufimmobilien finden sich unter Landkreis Ludwigsburg. Weitere Inserate befinden sich überregional in Baden-Württemberg.
Sollte Ihnen dieses Objekt gefallen, so kontaktieren Sie bitte Baroque Immo Group Immobilienmanagement Ansprechpartner Waldemar Schneider, Stuttgarterstraße 170 in 71732 Tamm.
Synonyme zur Suche Freiberg am Neckar Wohnungen:
Freiberg am Neckar Wohnung, Wohnungsanzeigen Freiberg am Neckar

