Vermietete 1-Raum-Whg. mit Balkon u. Tageslichtbad in Plauen! Zentrumsnah!
Wohnung zum kaufen in 08525 Plauen
Strasse:
PLZ /Ort:
Kaufpreis:
Wohnfläche:
Zimmer:
Flächen
Wohnfläche:
49,34 m²
Preise
Kaufpreis:
43.000,00 €
Hausgeld:
165,00 €
Vermittl.-Provision:
2.975,- EUR inkl. 19 % MwSt.
Energiepass
Art:
Verbrauch
Gültig bis:
2027-12-12
E-Verbrauchskennw.:
159.00
EP inkl. Warmwasser:
ja
Baujahr:
2014
Jahrgang:
2014
Gebäudeart:
wohn
Objektbeschreibung
Das Wohn- und Geschäftshaus wurde um 1994 massiv erbaut. 2014 wurde die Heizungsanlage lt. Energieausweis modernisiert.
Es ist voll unterkellert.
Stellplätze stehen in der Straße zur Verfügung.
Lage
Das Wohn- und Geschäftshaus befindet sich im westlichen Stadtbereich von Plauen in der sächsischen Region Vogtland. Es liegt etwa 2 km nordwestlich des Stadtzentrums, was sowohl eine ruhige Wohngegend als auch eine gute Anbindung an die Innenstadt ermöglicht.
Die Bonhoefferstraße verläuft parallel zur B 173, einer wichtigen Bundesstraße, die Plauen mit Städten wie Reichenbach im Vogtland und Zwickau verbindet. Dies sorgt für eine schnelle Erreichbarkeit der Autobahn A72.
Eine Bus- und Bahnhaltestelle erreicht man fußläufig in nur 5 Minuten.
Das Plauener Stadtzentrum mit einer Vielzahl an Restaurants, Cafés, Supermärkten und anderen Dienstleistungsangeboten erreicht man zu Fuß in etwa 15 Minuten. Besonders die Altstadt von Plauen ist durch ihre historische Architektur und das kulturelle Angebot ein beliebtes Ziel für Einheimische und Touristen.
In 3 Minuten erreicht man zu Fuß einen Park mit Spielplatz. Der Stadtpark Plauen ist nur etwa 15 Gehminuten entfernt und bietet großzügige Grünflächen sowie Sport- und Spielmöglichkeiten.
Ausstattung
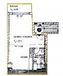
Die ca. 49,34 m² große 1-Raum-Wohnung befindet sich im DG und teilt sich wie folgt auf:
- Flur
- Tageslichtbad mit Wanne
- Wohn-/Schlafbereich mit Kochnische, EBK
- Balkon
Zur Wohnung gehört ein Kellerabteil mit der Nr. 11.
Sonstige Angaben
Die Wohnung ist vermietet. Der aktuelle Mietvertrag läuft seit 05/2017. Die Kaltmiete beträgt 204,00 EUR, die Nebenkostenvorauszahlung 90,00 EUR und die Gesamtmiete 294,00 EUR.
Der Erwerber wird Mitglied einer Wohneigentümergemeinschaft WEG mit einem Miteigentumsanteil von 572/10.000. Es ist lt. Wirtschaftsplan 2022 (weiter gültig) durch den Erwerber ein monatliches Hausgeld in Höhe von 165,00 EUR zu zahlen. Davon sind bei Vermietung erfahrungsgemäß ca. 2/3 als Betriebskosten umlegbar.
Der Energieausweis ist dem Exposé als pdf-Dokument beigefügt.
Bitte nutzen Sie das Kontaktformular, um uns Ihre Fragen bzw. Ihren Besichtigungswunsch mitzuteilen. Wir nehmen schnellstmöglich den Kontakt zu Ihnen auf bzw. senden Ihnen gern ergänzende Unterlagen entsprechend Ihrer Anfrage zu.
Alle Angaben beruhen auf Aussagen der Eigentümer bzw. basieren auf den uns bis dato vorliegenden Unterlagen und erfolgen ohne Gewähr. Irrtum und zwischenzeitlicher Verkauf bleiben vorbehalten. Exposé © 2025, Immobilienbüro Kühn
Kartenansicht
Wohnungen Plauen
Vermietete 1-Raum-Whg. mit Balkon u. Tageslichtbad in Plauen! Zentrumsnah! lautet die Titelzeile dieses Angebots in der NewHome Immobiliensuchmaschine. NewHome hat dieses Inserat zur Miete und zum Kauf unter Plauen eingetragen. Weitere Miet- und Kaufimmobilien finden sich unter Vogtlandkreis. Mehr Mietobjekten und Kaufimmobilien sind unter Sachsen zu finden.
Sollte Ihnen dieses Objekt gefallen, so kontaktieren Sie bitte Immobilienbüro Kühn GmbH & Co. KG Ansprechpartner Wolfgang Kühn, Jahnstraße 17 in 08058 Zwickau.
Synonyme zur Suche Plauen Wohnungen:
Plauen Wohnung, Wohnungsanzeigen Plauen

