Eigentumswohnung
Wohnung zum kaufen in 42477 Radevormwald
PLZ /Ort:
Kaufpreis:
Wohnfläche:
Zimmer:
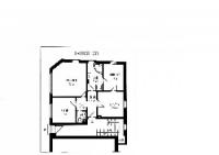
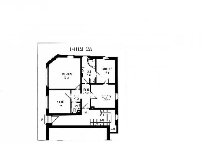
Flächen
Wohnfläche:
78,00 m²
Objektbeschreibung
Das Haus wurde vor 8 Jahren kernsaniert und modernisiert.Gepflegtes Eckhaus mit 3 Wohneinheiten. Öl-Zentralheizung, Kabelanschluss, Wasch-Trockenraum... Ruhig und zentral gelegen, gepflegtes Umfeld, gute Parkmöglichkeit... Die Böden sind weiss gefliest oder Laminat. Grosses Badezimmer mit Fenster, Dusche, Eckbadewanne.
Kartenansicht
Wohnungen Radevormwald
Eigentumswohnung lautet die Titelzeile dieses Angebots in der NewHome Immobiliensuchmaschine. Dieses Inserat gehört zu der NewHome Ergebnisliste Radevormwald. Weitere Miet- und Kaufimmobilien finden sich unter Oberbergischer Kreis. Geografisch kann dieses Objekt dem Bundesland Nordrhein-Westfalen zugeordnet werden.
Sollte Ihnen dieses Objekt gefallen, so kontaktieren Sie bitte Ansprechpartner Cornelia Ewald, in.
Synonyme zur Suche Radevormwald Wohnungen:
Radevormwald Wohnung, Wohnungsanzeigen Radevormwald

