Schöne, renovierte Wohnung in einem alten Bauernhaus, in Ruffrè zu verkaufen
Wohnung zum kaufen in 38010 Ruffrè
Strasse:
PLZ /Ort:
Kaufpreis:
Wohnfläche:
Zimmer:
Flächen
Wohnfläche:
100,00 m²
Preise
Kaufpreis:
270.000,00 €
Objektbeschreibung
Wir befinden uns in Ruffrè und bieten hier eine kürzlich, im Jahr 2023 renovierte Wohnung an. Die Immobilie hat eine privilegierte Lage mit offenem Blick auf die umliegenden Wiesen, Wälder und einen Teil der Skipiste.
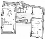
Die Wohnung befindet sich im zweiten Stock eines historischen Bauernhauses und ist über einen charakteristischen „Hof“ zugänglich. Im Inneren befindet sich ein großzügiges und helles Wohnzimmer mit Kochnische, bereichert durch einen eleganten antiken Kachelofen. Vom Flur aus hat man Zugang zu den beiden Badezimmern, und nach zwei Stufen gelangt man in die beiden Schlafzimmer. Eines der Schlafzimmer führt zu einem großen Dachboden, der zurzeit im Rohzustand ist. Die Wohnung ist gedämmt und alle Fenster sind dreifach verglast. Im Untergeschoss befindet sich der Heizungsraum (Pelletheizung) und einer der beiden Keller. Es gibt eine geräumige Garage und einen Außenstellplatz. Ein zweiter Keller befindet sich im gegenüberliegenden Bauernhaus. Die Wohnung wird teilmöbliert verkauft. Das Grundstück wird durch einen Garten von ca. 12 m² ergänzt. Die angegebenen Informationen sind indikativ und können Abänderungen unterliegen.
Kartenansicht
Wohnungen
Schöne, renovierte Wohnung in einem alten Bauernhaus, in Ruffrè zu verkaufen lautet die Titelzeile dieses Angebots in der NewHome Immobiliensuchmaschine. Mehr Inserate sind unter dem folgenden Suchergebnis zu finden: . Der hat ähnliche Immobilien aufgelistet. Unter sind weitere Immobilien-Exposé’s zum mieten und kaufen zu finden.
Der Anbieter Immobilien Bozen Ansprechpartner Heidi Scheiflinger, in hat noch weitere Objekte in der NewHome Datenbank inseriert.
Synonyme zur Suche Wohnungen:
Wohnung, Wohnungsanzeigen

