Großzügige 4 Zimmer Wohnung mit ca. 112m², EBK, Fußbodenheizung und umlaufendem Balkon in Berlin-Mitte
Wohnung zum mieten in 10117 Berlin
Strasse:
PLZ /Ort:
Kaltmiete:
Wohnfläche:
Zimmer:
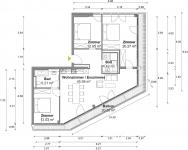
Flächen
Wohnfläche:
112,63 m²
Preise
Kaltmiete:
2.900,00 €
Warmmiete:
3.475,00 €
Nebenkosten:
575,00 €
Kaution:
8700
Energiepass
Art:
Bedarf
Gültig bis:
2029-04-07
Endenergiebedarf:
66.00
Objektbeschreibung
Diese wunderschöne und extrem helle 4 Zimmer Wohnung mit ca. 112m² Wohnfläche und tollem Balkon im 6. Stock des modernen Wohnkomplexes "Charlie Living" in Berlin-Mitte sucht einen neuen Mieter. Tolle Design-Details, eine hochwertige Ausstattung und viele ergänzende Mieter-Services machen das Wohnen im "Charlie Living" zu einem echten Premium-Erlebnis.
Hochwertiges Eichenparkett mit Fußbodenheizung, eine großzügige Fensterfront und die schicke Einbauküche...
Neugierig geworden? Alle Informationen und das vollständige Exposé erhalten Sie schnell und unkompliziert auf Anfrage.
Sonstige Angaben
Wir haben Ihr Interesse geweckt?
Hier auf dieser Seite finden Sie jetzt die Möglichkeit der Kontaktaufnahme. Für weitere Informationen (Termine, Anschrift u.ä.) benötigen wir Ihre Angaben: Name, Vorname, Anschrift, E-Mail, Telefonnummer (fest/mobil).
Anfragen ohne Angabe Ihrer Rückrufnummer und Ihrer Adresse können von uns nicht bearbeitet werden!
Für alle weiteren Informationen rufen Sie uns bitte unter der Telefonnummer 0170 61 81 61 3 an. Es betreut Sie:
Ivo Berg
Die Angaben in diesem Angebot beruhen auf Angaben des Auftraggebers oder Dritten. Agas-Immobilien übernimmt keine Haftung und keine Gewähr für die Richtigkeit, Vollständigkeit und Aktualität dieser Angaben. Irrtum, Auslassungen und Zwischenverwertung vorbehalten. Die im Exposé genannten Maßangaben (einschließlich bemaßter Grundrisse) sind als Circa-Angaben zu verstehen, welche vereinzelt Abweichungen vorweisen können. Die in den Grundrissen gezeigte Möblierung ist nur als Einrichtungsvorschlag zu verstehen, das Objekt wird unmöbliert übergeben.
Nur ein geringer Anteil unserer Immobilien wird von uns im Internet präsentiert. Suchende können sich über unsere Website http://www.agas-immobilien.de/sie-suchen-wir-finden für Immobilien vormerken lassen. Sie erhalten dann Immobilienangebote, bevor diese online vermarktet werden.
Möchten Sie eine Immobilie verkaufen oder vermieten, wir informieren Sie gerne diskret und unverbindlich über Ihre Möglichkeiten.
www.agas-immobilien.de
Kartenansicht
Wohnungen Berlin
Großzügige 4 Zimmer Wohnung mit ca. 112m², EBK, Fußbodenheizung und umlaufendem Balkon in Berlin-Mitte lautet die Titelzeile dieses Angebots in der NewHome Immobiliensuchmaschine. Auf der Seite Berlin sind weitere passende Immobilien zu finden. Weitere Miet- und Kaufimmobilien finden sich unter Landkreis Berlin. Das Bundesland Berlin ist die überregionale Zuordnung für dieses Immobilieninserat.
Sollte Ihnen dieses Objekt gefallen, so kontaktieren Sie bitte Agas Immobilien GmbH Ansprechpartner Matthias Wedel, Ackerstraße 9 in 10115 Berlin.
Synonyme zur Suche Berlin Wohnungen:
Berlin Wohnung, Wohnungsanzeigen Berlin

