* Großzügige 3-Zimmer mit Laminat, Balkon und Wanne in Zentrumsnähe! *
Wohnung zum mieten in 09130 Chemnitz
Strasse:
PLZ /Ort:
Kaltmiete:
Wohnfläche:
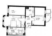
Zimmer:
Flächen
Wohnfläche:
80,73 m²
Preise
Kaltmiete:
323,00 €
Warmmiete:
508,68 €
Nebenkosten:
74,27 €
Heizkosten:
111,41 €
Kaution:
900
Lage
Ruhige Wohnlage in Chemnitz/ Sonnenberg mit guter Verkehrsanbindung ins Stadtzentrum. Alle Einkaufsmöglichkeiten, Schule und Sozialeinrichtungen liegen in direkter Nachbarschaft.
Ausstattung
Bad mit Wanne, Fenster und Fliesen,
Laminat,
Balkon,
Keller
Sonstige Angaben
Alle Daten beziehen sich auf die uns vorliegenden Pläne, uns übergebenen Unterlagen sowie Aussagen des Eigentümers. Für die Richtigkeit dieser Angaben, Irrtümer oder Änderungen können wir keine Haftung übernehmen.
Der Energieausweis ist bereits durch uns beim Eigentümer angefragt, dieser liegt uns aber noch nicht vor und wird spätestens zur Besichtigung nachgereicht.
Die hier angegebenen Nebenkosten sind lediglich ein Mindestbedarfsansatz. Je nach politischer und wirtschaftlicher Lage werden diese dann eventuell neu zwischen den Mietvertragsparteien festgelegt und ausgehandelt.
Kartenansicht
Wohnungen Chemnitz
* Großzügige 3-Zimmer mit Laminat, Balkon und Wanne in Zentrumsnähe! * lautet die Titelzeile dieses Angebots in der NewHome Immobiliensuchmaschine. Mehr relevante Immobilienanzeigen zu Ihrer suche sind unter Chemnitz zu finden. Weitere Miet- und Kaufimmobilien finden sich unter Landkreis Chemnitz. Weitere Inserate befinden sich überregional in Sachsen.
Sollte Ihnen dieses Objekt gefallen, so kontaktieren Sie bitte Ronald Stopp Immobilien Ansprechpartner Ronald Stopp, Vetterstraße 5 in 09126 Chemnitz.
Synonyme zur Suche Chemnitz Wohnungen:
Chemnitz Wohnung, Wohnungsanzeigen Chemnitz

