Gemütliche DG 2-Zimmer mit Laminat und Dachterreasse in zentraler Lage!
Wohnung zum mieten in 08056 Zwickau
Strasse:
PLZ /Ort:
Kaltmiete:
Wohnfläche:
Zimmer:
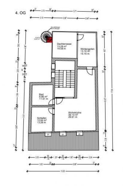
Flächen
Wohnfläche:
58,24 m²
Preise
Kaltmiete:
349,00 €
Warmmiete:
499,00 €
Nebenkosten:
150,00 €
Kaution:
900
Energiepass
Art:
Verbrauch
Gültig bis:
15.08.2029 00:00:00
E-Verbrauchskennw.:
196,2
Lage
Zentrale Wohnlage in Zwickau mit guter Verkehrsanbindung ins Stadtzentrum. Alle Einkaufsmöglichkeiten, Schule und Sozialeinrichtungen liegen in direkter Nachbarschaft.
Ausstattung
- Laminat
- Hausmeister
- Dachterrasse
Sonstige Angaben
Der Energieausweis ist bereits durch uns beim Eigentümer angefragt, dieser liegt uns aber noch nicht vor und wird spätestens zur Besichtigung nachgereicht.
Die hier angegebenen Nebenkosten sind lediglich ein Mindestbedarfsansatz. Je nach politischer und wirtschaftlicher Lage werden diese dann eventuell neu zwischen den Mietvertragsparteien festgelegt und ausgehandelt.
Alle Daten beziehen sich auf die uns vorliegenden Pläne, uns übergebenen Unterlagen sowie Aussagen des Eigentümers. Für die Richtigkeit dieser Angaben, Irrtümer oder Änderungen können wir keine Haftung übernehmen.
Kartenansicht
Wohnungen Zwickau
Gemütliche DG 2-Zimmer mit Laminat und Dachterreasse in zentraler Lage! lautet die Titelzeile dieses Angebots in der NewHome Immobiliensuchmaschine. NewHome hat dieses Inserat zur Miete und zum Kauf unter Zwickau eingetragen. Weitere Miet- und Kaufimmobilien finden sich unter Landkreis Zwickau. Weitere Anzeigen finden Sie unter Sachsen.
Sollte Ihnen dieses Objekt gefallen, so kontaktieren Sie bitte Ronald Stopp Immobilien Ansprechpartner Ronald Stopp, Vetterstraße 5 in 09126 Chemnitz.
Synonyme zur Suche Zwickau Wohnungen:
Zwickau Wohnung, Wohnungsanzeigen Zwickau

