Ab 1.3.26! Wunderschöne 2-Raum-Wohnung mit Balkon und TG-Stellplatz!
Wohnung zum mieten in 08058 Zwickau
Strasse:
PLZ /Ort:
Kaltmiete:
Wohnfläche:
Zimmer:
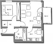
Flächen
Wohnfläche:
51,00 m²
Preise
Kaltmiete:
400,00 €
Warmmiete:
543,00 €
Nebenkosten:
160,00 €
Kaution:
1.200
Objektbeschreibung
Ihre neue Wohnung befindet sich in einer 1994 in hoher
Bauqualität errichteten Stadtvilla in erstklassiger Lage
in Weissenborn.
Es handelt sich um eine durchdacht geschnittene
moderne Wohnung im dritten Obergeschoss.
Ein heller Treppenaufgang, die geschmackvolle und
naturnahe Gestaltung der Außenanlage sowie das
repräsentative Wohnumfeld wird von den Bewohnern
geschätzt und durch eine zuverlässige Hausverwaltung
gepflegt.
Lage
Der Stadtteil Zwickau-Weißenborn ist seit der
Jahrhundertwende die bevorzugte Wohngegend der
wohlhabenden Zwickauer Bürger. Anspruchsvolle Villen
und Bürgerhäuser prägten bis in die 30-er Jahre das
Bild.
Rund um die Weißenborner Kirche, dem ursprünglichen
dörflichen Zentrum, sind alle nötigen infrastrukturellen
Einrichtungen vorhanden bzw. wurden neu errichtet.
Die Verkehrsanbindung an die Stadt ist ausgezeichnet.
Das Stadtzentrum Zwickaus, ca. 3 km entfernt, ist. Der Stadtteil Zwickau-Weißenborn ist seit der
Jahrhundertwende die bevorzugte Wohngegend der
wohlhabenden Zwickauer Bürger. Anspruchsvolle Villen
und Bürgerhäuser prägten bis in die 30-er Jahre das
Bild.
Rund um die Weißenborner Kirche, dem ursprünglichen
dörflichen Zentrum, sind alle nötigen infrastrukturellen
Einrichtungen vorhanden bzw. wurden neu errichtet.
Die Verkehrsanbindung an die Stadt ist ausgezeichnet.
Das Stadtzentrum Zwickaus, ca. 3 km entfernt, ist. Der Stadtteil Zwickau-Weißenborn ist seit der
Jahrhundertwende die bevorzugte Wohngegend der
wohlhabenden Zwickauer Bürger. Anspruchsvolle Villen
und Bürgerhäuser prägten bis in die 30-er Jahre das
Bild.
Rund um die Weißenborner Kirche, dem ursprünglichen
dörflichen Zentrum, sind alle nötigen infrastrukturellen
Einrichtungen vorhanden bzw. wurden neu errichtet.
Die Verkehrsanbindung an die Stadt ist ausgezeichnet.
Das Stadtzentrum Zwickaus, ca. 3 km entfernt, ist Der Stadtteil Zwickau-Weißenborn ist seit der
Jahrhundertwende die bevorzugte Wohngegend der
wohlhabenden Zwickauer Bürger. Anspruchsvolle Villen
und Bürgerhäuser prägten bis in die 30-er Jahre das
Bild.
Rund um die Weißenborner Kirche, dem ursprünglichen
dörflichen Zentrum, sind alle nötigen infrastrukturellen
Einrichtungen vorhanden bzw. wurden neu errichtet.
Die Verkehrsanbindung an die Stadt ist ausgezeichnet.
Das Stadtzentrum Zwickaus, ca. 3 km entfernt, ist bequem erreichbar. Der Weißenborner Stadtpark ist in
nur 5 Minuten zu Fuß erreichbar. Hier laden Rad- und
Wanderwege, Teiche und kleine Bäche sowie ein
intakter Wald zum Erholen in der Natur ein.
Ausstattung
Die Wohnung wurde Ende 2018 neu saniert. Dabei
kamen moderne und sehr geschmackvolle Materialien
zum Einsatz. Die Wohnräume sind mit Design-Vinylboden ausgestattet, der einen hohen Komfort
bietet. Neue schicke Innentüren und hochwertige
Lichtschalter und Steckdosen verleihen ein elegantes
Ambiente. Das inneliegende Bad wurde zu einer
luxuriösen Wohlfühloase umgestaltet. Besondere
Highlights sind neben der modernen Badkeramik auch
der beleuchtete und beheizbare Spiegel sowie eine
große Deckenlampe, die durch eine Fernbedienung
wahlweise Sternenhimmel oder Sonnenlicht imitieren
kann. Die Badewanne wurde -wie auch die Wände und
der Boden- mit geschmackvollen großformatige
Fliesenelementen in grau belegt. Einige grüne Flächen
sorgen für Frische. Die Wanne wurde zudem mit einer
klappbaren Glaswand ergänzt. Ein stylischer
Handtuchheizkörper sorgt für Wärme und Komfort. Im
Bad befindet sich auch der Waschmaschinenanschluss.
Das Wohnzimmer wird durch große Fenster erhellt.
Außerdem befindet sich hier der Ausgang auf den
Südbalkon, der aufgrund der Lage im 3. OG einen
schönen Blick in die Umgebung ermöglicht.
Auch die Küche hat ein Fenster. Sie ist ausreichend
groß, um hier einen Essplatz für 2 einzurichten.
Die Fenster sind mit manuellen Außenjalousien
versehen. Zur Wohnung gehört ein Mieterkeller und ein
Tiefgaragenstellplatz.
Sonstige Angaben
Dieses Angebot entspricht noch nicht Ihren Wünschen...?
Besuchen Sie auch unsere Homepage mit vielen weiteren Wohnungsangeboten oder sprechen Sie uns persönlich an. Wir präsentieren Ihnen gern weitere Objekte.
Alle Angaben beruhen auf Aussagen Dritter und erfolgen ohne Gewähr. Exposé © Immobilienbüro Kühn
Kartenansicht
Wohnungen Zwickau
Ab 1.3.26! Wunderschöne 2-Raum-Wohnung mit Balkon und TG-Stellplatz! lautet die Titelzeile dieses Angebots in der NewHome Immobiliensuchmaschine. NewHome hat dieses Inserat zur Miete und zum Kauf unter Zwickau eingetragen. Weitere Miet- und Kaufimmobilien finden sich unter Landkreis Zwickau. Weitere Anzeigen finden Sie unter Sachsen.
Sollte Ihnen dieses Objekt gefallen, so kontaktieren Sie bitte Immobilienbüro Kühn GmbH & Co. KG Ansprechpartner Wolfgang Kühn, Jahnstraße 17 in 08058 Zwickau.
Synonyme zur Suche Zwickau Wohnungen:
Zwickau Wohnung, Wohnungsanzeigen Zwickau

