Kapitalanlage mit Zukunft – Junge Einfamilienhäuser in Mönchengladbach
Gewerbe zum kaufen in 41069 Mönchengladbach
PLZ /Ort:
Kaufpreis:
Gesamtfläche:
Flächen
Wohnfläche:
339,00 m²
Grundstücksfläche:
777,00 m²
vermietbare Fläche:
339,00 m²
Preise
Kaufpreis:
795.000,00 €
Vermittl.-Provision:
4,76 % inkl. MwSt vom beurkundeten Kaufpreis
Energiepass
Gültig bis:
2027-08-28
Objektbeschreibung
Im beliebten Mönchengladbacher Stadtteil präsentieren wir Ihnen drei gepflegte Einfamilienhäuser aus dem Baujahr 2002.
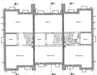
Zum Verkauf stehen zwei Reihenendhäuser und ein Reihenmittelhaus. Die Immobilien überzeugen durch ihre moderne Architektur, durchdachte Grundrisse und eine solide Bauqualität.
Das Besondere an diesem Angebot:
Die Häuser werden aktuell zu einem außergewöhnlich attraktiven Kaufpreis angeboten. Dieser ergibt sich aus der derzeit günstigen Vermietungssituation, da WBS gebunden.
Für Kapitalanleger eröffnet sich hier eine seltene Gelegenheit, Immobilien deutlich unter dem tatsächlichen Marktwert zu erwerben.
Durch das bestehende Mietsteigerungspotenzial und die bereits heute höheren Marktwerte der Immobilien bieten sich mittelfristig hervorragende Renditechancen:
•Mietanpassungen bei Neuvermietungen
•Künftiger Verkauf an Eigennutzer zu einem höheren Preis
•Steigerung des Immobilienwerts bei veränderter Nutzung
•Erwerb unter dem tatsächlichem Marktwert
Ausstattungsmerkmale (Auswahl):
•Massive Bauweise (Baujahr 2002)
•4 bis 5 Zimmer auf ca. 111–115 m² Wohnfläche je Haus
•Moderne Badezimmer
•Gäste-WC
•Wohnbereiche mit direktem Zugang zum Garten
•Kunststofffenster mit Isolierverglasung
•Gaszentralheizung
•Unterkellerung
•PKW - Aussenstellplatz inklusive
•Ruhige, familienfreundliche Wohnlage
•Gepflegte Privatgärten mit Terrassen
Fazit:
Ein Investment mit Perspektive: Sichern Sie sich hochwertige Immobilien zu einem Preis, der Potenzial für eine starke Wertentwicklung bietet – sei es durch künftige Mietanpassungen oder den späteren Verkauf an Eigennutzer.
Der Preis pro Haus beträgt 265.000€ zzgl. optional + 5.000€ für einen PKW Aussenstellplatz. Es handelt sich um Festpreise. Die Häuser können einzeln oder als Paket erworben werden.
Paketpreis der drei Häuser inkl. zwei PKW Aussenstellplätzen 805.000€.
Ende der Mietbindung (WBS) : zum 31.12.2027.
Lage
Lage: Mönchengladbach Ohler - Westend
Die Immobilien liegen in einem gewachsenen Wohngebiet in Mönchengladbach. Einkaufsmöglichkeiten, Schulen, Kindergärten sowie Freizeitangebote befinden sich in unmittelbarer Nähe. Die Anbindung an den öffentlichen Nahverkehr und an das überregionale Straßennetz ist ideal.
Sonstige Angaben
Mieteinnahmen pro Jahr:
Haus Links: 6.209,76 € Kaltmiete zzgl. 180 € Stellplatz - Das Mietverhältnis besteht seit: 2016
Mittelhaus: 6.423,00 € Kaltmiete zzgl. 180 € Stellplatz - Das Mietverhältnis besteht seit: 2003
Haus Rechts: 6.209,76 € Kaltmiete - Das Mietverhältnis besteht seit: 2016
Aufgrund der günstigen Mietsituation werden die Häuser deutlich unter Marktwert angeboten. Künftige Mietpreissteigerungen garantiert. Ende der Mietbindung 31.12.2027.
Um die Privatsphäre der Mieter zu schützen, sehen wir von der Veröffentlichung der Bilder von vermieteten Wohnungen ab. Gerne laden wir Sie zu einem persönlichen Gespräch ein und ermöglichen Ihnen den Einblick in die vermieteten Wohnungen.
Die Vermarktung der Immobilie erfolgt in Kooperation des DiMA Immobiliencenters (www.dima-immobiliencenter.de) und Bekim Kastrati BK Immobilienvermittlung (www.bk-immobilienvermittlung.de).
***FÜR KAPITALANLEGER***
Kapitalanlegern bieten wir optional einen einmaligen "Rundum-Sorglos-Service":
-Absicherung gegen Mietausfall
-Absicherung gegen Vandalismus
-Komplettservice bei Neuvermietungen inkl. Mietersuche, Bonitätsprüfung und Übergabe
-Verwaltung und Betreuung Ihrer Immobilie
Ihr Vorteile:
-Maximale Ausschöpfung Ihrer Anlage
-Ihre Investition bleibt eine langfristige, sichere Anlage
-Kein eigener Zeitaufwand
_________________________________
***ALLE EXPERTEN IN EINEM HAUS***
Das DiMA Immobiliencenter vereint Experten der gesamten Immobilienbranche in einem Haus.
Mehr erfahren Sie unter: www.dima-immobiliencenter.de
_________________________________
Alle Angaben beruhen auf Informationen der Eigentümer. Hierfür kann trotz sorgfältiger Prüfung unsererseits keine Gewähr und Haftung für die Richtigkeit und Vollständigkeit übernommen werden.
Kartenansicht
Gewerbeimmobilien Mönchengladbach
Unter Kapitalanlage mit Zukunft – Junge Einfamilienhäuser in Mönchengladbach findet sich diese Immobilie in der Datenbank. Mehr relevante Immobilienanzeigen zu Ihrer suche sind unter Mönchengladbach zu finden. Weitere Immobilien sind unter dem Kreis Mönchengladbach inseriert worden.
Mehr Mietobjekten und Kaufimmobilien sind unter Nordrhein-Westfalen zu finden. Die Anbieterangaben lauten: DiMA Immobiliencenter GmbH Ansprechpartner Walter Weeger, Engelblecker Straße 184 in 41066 Mönchengladbach.
Synonyme zur Suche Mönchengladbach Gewerbeimmobilien:
Industrie-Immobilien Mönchengladbach, Mönchengladbach Immobilien für Gewerbe

