Halle mit Büro und Wohn- oder Büroeinheit
Gewerbe zum kaufen in 73650 Winterbach (Rems-Murr-Kreis)
PLZ /Ort:
Kaufpreis:
Gesamtfläche:
Gesamtfläche:
Flächen
Gesamtfläche:
353,00 m²
Grundstücksfläche:
349,00 m²
Preise
Kaufpreis:
530.000,00 €
Vermittl.-Provision:
4,76% vom Kaufpreis (inkl. MwSt.)
Energiepass
Art:
Verbrauch
Gültig bis:
2032-08-25
E-Verbrauchskennw.:
177,9
EP inkl. Warmwasser:
ja
Kamin
Kabel/Sat/TV
Abstellraum
Rolladen
Objektbeschreibung
Bitte beachten Sie, dass wir bis zum 07.01.2026 Betriebsferien haben. Sie erreichen uns in dieser Zeit nicht.
Die erste Besichtigung wird am Donnerstag, 08.01.2026 stattfinden.
Das Lang-Exposé mit Bildern wird Ihnen nach Anfrage bei Immobilienscout24 automatisch per E-Mail zugesendet. Bitte prüfen Sie ggf. auch Ihren Spam-Ordner.
Verkauf steht ein vielseitig nutzbares Gewerbeobjekt in einem ausgewiesenen Gewerbegebiet. Die Immobilie verbindet funktionale Hallen- und Büroflächen mit einer großzügigen, repräsentativen Wohn- bzw. Büroeinheit im Obergeschoss und eignet sich ideal für Eigennutzer, die Gewerbe, Verwaltung und optionales Wohnen an einem Standort vereinen möchten.
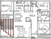
Im Erdgeschoss befindet sich eine ca. 131 m² große Halle mit einer Höhe von ca. 4,00 m. Die Halle ist über ein Tor mit integrierter Türe von der Nordseite aus zugänglich und mit einem Starkstromanschluss ausgestattet. Ergänzend stehen auf dieser Ebene ein Büro, ein Sozialraum sowie Sanitäranlagen mit insgesamt ca. 25 m² zur Verfügung. Direkt an die Halle angebaut ist eine separate Garage mit ca. 34 m² Fläche.
Das Obergeschoss umfasst eine ca. 128 m² große Einheit, die derzeit als helle 3,5-Zimmer-Wohnung ausgeführt ist, jedoch alternativ vollständig als Büro genutzt werden kann. Die Einheit verfügt über einen Garderobenbereich, ein separates WC sowie ein Tageslichtbad mit Badewanne, Regendusche, Waschbecken, WC und Handtuchwärmer. Neben der Toilette ist ein weiteres Schlaf-, Kinder- oder Gästezimmer angeordnet; ein weiteres Zimmer ist direkt vom Bad aus zugänglich.
Mittelpunkt der Einheit ist der ca. 41 m² große Wohn- und Essbereich mit offener Küche, Kamin und angrenzendem Vorrats- bzw. Abstellraum hinter der Küche, der nicht beheizt ist. Von hier aus gelangt man auf die ca. 34 m² große, nach Südwesten ausgerichtete Dachterrasse mit einem zusätzlichen Abstellraum von ca. 11,5 m².
Die Wohnung ist überwiegend mit Fußbodenheizung ausgestattet. In einem Schlafzimmer befindet sich anstelle der Fußbodenheizung ein Radiator.
Das Gebäude ist teilunterkellert; die Kellerfläche beträgt ca. 35 m². Der Zugang zu den Büroflächen im Erdgeschoss erfolgt über die Ostseite des Gebäudes, der Zugang zur Wohn- bzw. Büroeinheit über die Südseite. Es stehen drei Außenstellplätze zur Verfügung.
Die Beheizung erfolgt über eine Zentralheizung. Halle und Wohn-/Büroeinheit sind derzeit getrennt abrechenbar. Ein Gasanschluss ist im Gebäude bereits vorhanden, sodass bei Bedarf eine Umstellung auf eine Gasheizung möglich ist.
Eine Wohnnutzung ist nur eingeschränkt zulässig, insbesondere für Betriebsleiter, Aufsichts- und Bereitschaftspersonal sowie dem Betrieb zugehörige Personen wie Hausmeister oder leitende Angestellte. Die überwiegende Nutzung der Immobilie ist gewerblich; eine vollständige Büronutzung der Einheit im Obergeschoss ist ebenfalls möglich.
Der Kaufpreis versteht sich ohne Ausweis von Umsatzsteuer. Der Verkauf erfolgt umsatzsteuerfrei. Die steuerliche Behandlung ersetzt keine individuelle steuerliche Beratung.
Gerne mailen wir Ihnen ein Exposé mit Bildern, Grundrissen, Ansichten, entlastendes Bodengutachten und Querschnitt. Sehr gerne zeigen wir Ihnen auch das Gebäude.
Lage
Das Gebäude wurde im Gewerbegebiet mit Beschränkungen in einer top Lage ca. 300 Meter von der B 29 und 1000 m vom Bahnhof entfernt. Einkaufsmöglichkeiten, Restaurants sowie Felder und Wiesen sind in fußläufiger Entfernung erreichbar.
Winterbach ist eine Gemeinde im Remstal, etwa 23 km östlich von Stuttgart entfernt und gehört zu den reichen Gemeinden in Baden-Württemberg. Derzeit stellen die Winterbacher Unternehmen über 2.000 Arbeitsplätze zur Verfügung.
Winterbach hat fünf Kindergärten, Grund- und Ganztageswerkrealschule sowie die über die Grenzen hinaus bekannte Waldorfschule. Die nächste Realschule befindet sich in Remshalden und die beiden nächst gelegenen Gymnasien in Schorndorf.
An Winterbach führt die Bundesstraße 29 (Stuttgart – Aalen) vorbei.
In Winterbach befindet sich ein Haltepunkt der S-Bahnlinie S2 (Schorndorf – Stuttgart – Stuttgart Flughafen – Filderstadt), die Winterbach an das Stuttgarter S-Bahnnetz im VVS anschließt.
Ausstattung
- Sehr gute Lage
- Gewerbegebiet mit Beschränkungen
- 300 Meter bis zur B 29
- 1000 Meter zum Bahnhof
- Halle ebenerdig
- 131 m²
- Starkstromanschlüsse
- Sektionaltor mit Tür
- Krahn ist kaputt
- Büro, Sozialraum, sanitäre Anlagen im EG auf ca. 25 m²
- Kellerräume auf einer Fläche von ca. 35 m²
- 3,5 Zimmer Wohnung oder Büro im OG mit ca. 128 m² Wohnfläche
- 41 m² großes Wohn- Esszimmer mit integrierter Küche
- Kaminofen
- Neuwertiges Bad
- Separate Toilette
- Dachterrasse mit S/W-Ausrichtung und ca. 34 m²
- Garage mit ca. 34 m²
- 3 PKW-Stellplätze
- Die Halle ist frei
- Die Wohnung frei
Sonstige Angaben
Käuferprovision: Für den Nachweis der Kaufgelegenheit und/oder die Vermittlung des Kaufvertrags ist vom Käufer eine Maklerprovision in Höhe von 4,76 % inklusive gesetzlicher Mehrwertsteuer, berechnet aus dem notariell beurkundeten Kaufpreis, zu zahlen. Die Provision ist mit Abschluss des notariellen Kaufvertrags fällig. Aufgrund der überwiegend gewerblichen Nutzung der Immobilie wird die Maklerprovision vollständig vom Käufer getragen. Ein provisionspflichtiger Maklervertrag kommt durch die Inanspruchnahme der Maklertätigkeit zustande.
Alle im Exposé enthaltenen Angaben basieren auf erhaltenen Unterlagen sowie den Aussagen der/des Eigentümerin/Eigentümers. Es wurde bestmöglich recherchiert, allerdings können wir nicht für die Richtigkeit garantieren.
Unsere Angebote sind freibleibend und in diesem Falle nur für Sie bestimmt. Eine Weitergabe an Dritte bedarf unserer Zustimmung. Eine Innenbesichtigung erfolgt nur nach vorheriger Absprache mit uns. Bei einer Außenbesichtigung bitte ich Sie um Diskretion.
Nachdem Ihre Anfrage per E-Mail bei uns eingegangen ist, werden wir uns mit Ihnen zur Abstimmung eines Besichtigungstermins in Verbindung setzen. Bitte nennen Sie deshalb in Ihrer E-Mail eine Tel.-Nr., unter der wir Sie sicher erreichen können. Widerrufsbelehrung für Verbraucher: Sie haben das Recht, binnen vierzehn Tagen ohne Angabe von Gründen diesen Vertrag zu widerrufen. Die Widerrufsfrist beträgt vierzehn Tage ab dem Tag des Vertragsabschlusses. Um Ihr Widerrufsrecht auszuüben, müssen Sie uns (Sabine Bausch Immobilien, Gmünder Str. 65, 73614 Schorndorf, Telefon: 07181 48 25 854, info@immobilien-bausch.de) mittels einer eindeutigen Erklärung (Brief, oder E-Mail) über Ihren Entschluss, diesen Vertrag zu widerrufen, informieren. Zur Wahrung der Widerrufsfrist reicht es aus, dass Sie die Mitteilung über die Ausübung des Widerrufsrechts vor Ablauf der Widerrufsfrist absenden.
Sollte Ihnen die Wohnung bereits bekannt sein, bitten wir Sie uns innerhalb von 5 Tagen den anderen Anbieter schriftlich zu benennen - andernfalls gilt der Nachweis durch uns als anerkannt. Kommt ein Kauf durch unseren Nachweis und/oder unsere Vermittlung zustande, stellen wir dem Käufer und dem Verkäufer nach der Unterzeichnung des notariellen Kaufvertrages eine Provision von 4,76 % inkl. MwSt. in Rechnung.
Kartenansicht
Gewerbeimmobilien Winterbach (Rems-Murr-Kreis)
Unter Halle mit Büro und Wohn- oder Büroeinheit findet sich diese Immobilie in der Datenbank. Mehr relevante Immobilienanzeigen zu Ihrer suche sind unter Winterbach (Rems-Murr-Kreis) zu finden. Weitere Immobilien sind unter dem Rems-Murr-Kreis inseriert worden.
Das zugewiesene Bundesland dieses Immobilieninserats ist Baden-Württemberg. Der Anbieter Sabine Bausch Immobilien Ansprechpartner , Gmünder Str. 65 in 73614 Schorndorf hat noch weitere Objekte in der NewHome Datenbank inseriert.
Synonyme zur Suche Winterbach (Rems-Murr-Kreis) Gewerbeimmobilien:
Industrie-Immobilien Winterbach (Rems-Murr-Kreis), Winterbach (Rems-Murr-Kreis) Immobilien für Gewerbe

