Büro & flex. Gewerbeflächen z.B. für Praxis, Kanzlei, Ausstellung, Lager, Physio - Langenzenn
Gewerbe zum mieten in 90579 Langenzenn
Strasse:
PLZ /Ort:
Kaltmiete:
Gesamtfläche:
Gesamtfläche:
Flächen
Nutzfläche:
650,00 m²
Gesamtfläche:
650,00 m²
Preise
Kaltmiete:
8,00 €
Räume veränderbar
barrierefrei
Objektbeschreibung
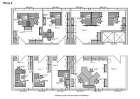
Untervermietung von ca. 200 bis 650 m² ebenerdige repräsentative & individuelle Gewerbeflächen, geeignet für die verschiedensten Nutzungsmöglichkeiten wie z.B.:
- Büro & Verwaltung
- Praxis & Kanzlei
- Ausstellung- oder Produktion
- Lager & Storage
- auch Schulung & Training oder ähnliches möglich
Eine Einzelnutzung bzw. Einzelanmietung der Flächen ist bauliche wie vertraglich in den angegebenen Größen problemlos möglich.
Die Hallen sind auch geeignet für z.B. Produkt Promotion´s, Gruppenevents oder Vorführungen.
Sofort verfügbare Flächen z.B.:
Fläche 1 – ca. 220 m² (Büro-/Verwaltungs-Bereich)
Fläche 2 – ca. 270 m² (Büro-Trainings-/Ausstellungs-Bereich)
Fläche 3 – ca. 200 m² (Ausstellungs-/Produktions-Bereich)
Lage
Sehr zentrale Lage direkt an der Ausfahrt der B8 (N/Fü/NEA) in einem
repräsentativ gepflegtem Businesspark ähnlichem Areal.
Direkt am Eingang zum neuen Gewerbegebiet Langenzenn Süd/Mühlsteig.
Ausstattung
Untervermietung von repräsentativen, funktional & anpassbaren Gewerbe- und Produktionsflächen
* große Tageslichtfronten
* parkähnliche Außenanlagen
* ruhige Lage
* separate Zugangsmöglichkeiten
* ebenerdig/barrierefrei
Sofort verfügbare Flächen:
Fläche 1 – ca. 220 m² (Office-Bereich)
Fläche 2 – ca. 270 m² (Office-/Ausstellungs-Bereich)
Fläche 3 – ca. 200 m² (Office-/Ausstellungs-/Produktion-Bereich)
Eine Anmietung im möblierten/teilmöblierten Zustand ist nach Absprache ebenfalls möglich.
Die Räume sind variabel zu teilen.
- Parkmöglichkeiten vorhanden
- Kundenparkplätze zusätzlich möglich
Mietfläche: ca. 200 bis zu 650 m² (alle Flächen barrierefrei im Erdgeschoß)
Übergabezustand: Büro und Produktionsräume, teils mit Teppich oder Industrieboden, ggf. möbliert
Sonstige Angaben
Bezug: ab sofort/nach Vereinbarung
Impressum siehe www.riess.immo
Individuelle Besichtigungen sind nach Terminvereinbarung jederzeit kurzfristig möglich.
Nutzen Sie zur Kontaktaufnahme das Kontaktformular. Bitte beachten Sie, dass nur ein VOLLSTÄNDIG AUSGEFÜLLTES Kontaktformular mit kompletten Namen, Tel.-Nummer, E-Mail und Anschrift von uns bearbeitet werden kann. Anfragen ohne Telefonnummer können grundsätzlich nicht bearbeitet werden.
Nach Erhalt Ihrer Anfrage, werden wir uns telefonisch mit Ihnen in Verbindung setzen.
Alle Angaben sind ohne Gewähr und beruhen auf Angaben des Eigentümers bzw. Vermieters.
Kartenansicht
Gewerbeimmobilien Langenzenn
Unter Büro & flex. Gewerbeflächen z.B. für Praxis, Kanzlei, Ausstellung, Lager, Physio - Langenzenn findet sich diese Immobilie in der Datenbank. Auf der Seite Langenzenn sind weitere passende Immobilien zu finden. Weitere Immobilien sind unter dem Landkreis Fürth inseriert worden.
Geografisch kann dieses Objekt dem Bundesland Bayern zugeordnet werden. Der Anbieter Immobilenmakler Ansprechpartner Alexander Rieß, Schnepfenreuther Weg 2 in 90425 Nürnberg hat noch weitere Objekte in der NewHome Datenbank inseriert.
Synonyme zur Suche Langenzenn Gewerbeimmobilien:
Industrie-Immobilien Langenzenn, Langenzenn Immobilien für Gewerbe

