Dieses fabelhafte Grundstück mit 720 m² befindet sich in der wunderschönen Gemeinde Ferragudo, ganz in der Nähe mehrerer Annehmlichkeiten wie Restaur
Grundstück zum kaufen in Ferragudo
PLZ /Ort:
Kaufpreis:
Grundstücksfläche:
Flächen
Grundstücksfläche:
720,00 m²
Preise
Kaufpreis:
875.000,00 €
Objektbeschreibung
Dieses fabelhafte Grundstück mit 720 m² befindet sich in der wunderschönen Gemeinde Ferragudo, ganz in der Nähe mehrerer Annehmlichkeiten wie Restaurants, Supermärkten, Geschäften und Kaffee. Der nächste Strand ist 2 Autominuten entfernt.
Es ist ein ausgezeichnetes Investitionsgrundstück mit Blick auf das Land und erstklassiger Lage.
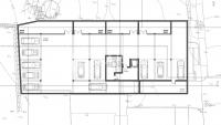
Es besteht die Möglichkeit, ein Gästehaus mit 20 Schlafzimmern, Wohnzimmer, Waschküche, Dachterrasse und Tiefgarage mit Gemeinschaftsparkplätzen zu bauen. Einzigartige Gelegenheit für Investoren, nur wenige Schritte vom Strand entfernt und im malerischen Dorf Ferragudo.
Kartenansicht
Grundstücke
Der Titel dieser Seite lautet: Dieses fabelhafte Grundstück mit 720 m² befindet sich in der wunderschönen Gemeinde Ferragudo, ganz in der Nähe mehrerer Annehmlichkeiten wie Restaur. Diese Anzeige wird geführt unter .
Weitere Miet- und Kaufimmobilien finden sich unter . Das zugewiesene Bundesland dieses Immobilieninserats ist . Der Anbieter Red Panda Properties Ansprechpartner Mario Totzek, Prager Str.326 in 04289 Leipzig hat weitere Immobilien inseriert, die Sie weiter unten finden.
Synonyme zur Suche Grundstücke:
Grundstücksanzeigen, Grundstücks-Angebote, Grundstück

