Baugrundstück mit 4855 m² in Salzhausen.
Grundstück zum kaufen in 21376 Salzhausen
PLZ /Ort:
Kaufpreis:
Grundstücksfläche:
Flächen
Gesamtfläche:
4.855,00 m²
Preise
Kaufpreis:
299.000,00 €
Vermittl.-Provision:
Die Maklerprovision in Höhe von 6,25% inkl. gesetzlicher MwSt. zahlt der Käufer
Objektbeschreibung
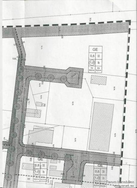
Freie Gewerbefläche, die das Arbeiten und Wohnen zulassen. Auf der freien Fläche von ca. 4885 qm darf nach B-Plan ca. 2427,5 qm zweistöckig bebaut werden. Eine Wohneinheit für den Besitzer oder den Hausmeister darf errichtet werden. Das Grundstück liegt in einer Verkehrsberuhigten Sackgassenlage. Die unmittelbare Umgeung bietet andere kleine bis mittlere Gewerbebetriebe. Der Ortskern von Salzhausen ist innerhalb von ca. 15 Minuten fußläufig erreichbar.
Lage
Salzhausen - Oelstorf hat ca. 5.500 Einwohner. In der Samtgemeinde befinden sich ca. 14.500 Einwohner mit steigender Tendenz.
Lage und Verkehrsanbindung: Die Samtgemeinde Salzhausen liegt im Norden der Lüneburger Heide zwischen Lüneburg und Winsen an der Luhe. Beide Städte sind jeweils ca. 15 km entfernt. Vom Grundstück bis zur Autobahn A7 sind es ca. 4 km. Hamburg liegt ca. 35 km entfernt, Hannover und Bremen jeweils ca. 70 km.
Infrastruktur: Die Grundstücke sind voll erschlossen und an die Gemeindeinfrastruktur angebunden. Schnelles kabelgebundenes Internet ist verfügbar.
Kartenansicht
Grundstücke Salzhausen
Der Titel dieser Seite lautet: Baugrundstück mit 4855 m² in Salzhausen.. Dieses Exposé wird geführt unter Immobiliensuche nach Salzhausen.
Der Landkreis Harburg hat ähnliche Immobilien aufgelistet. Geografisch kann dieses Objekt dem Bundesland Niedersachsen zugeordnet werden. Der Inserent Ansprechpartner , in hat noch weitere Immobilien bei NewHome inseriert.
Synonyme zur Suche Salzhausen Grundstücke:
Salzhausen Grundstücksanzeigen, Grundstücks-Angebote Salzhausen, Grundstück Salzhausen

