Reihenhaus Feudenheim, massive Bauweise inkl. Keller, ca.180 m² Grundstück, Niedrigenergiehaus
Haus zum kaufen in 68259 Mannheim
PLZ /Ort:
Kaufpreis:
Wohnfläche:
Zimmer:
Grundstücksfl.:
Flächen
Wohnfläche:
108,00 m²
Grundstücksfläche:
180,00 m²
Gartenfläche:
100,00 m²
Preise
Kaufpreis:
363.000,00 €
Vermittl.-Provision:
keine
Kamin
klimatisiert
Gartennutzung
Kabel/Sat/TV
barrierefrei
Wasch/Trockenraum
Rolladen
Objektbeschreibung
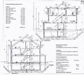
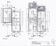
Der Grundriss diese Hauses ist etwas ungewöhnlicher....oder moderner....im amerikanischen Stil parkt man das Auto im eingerückten Erdgeschoss in dem dann der Platz für die große Wohnküche mit zugang zur Terrasse und Garten besteht und ein G-WC. Ideal für eine große Familie oder den Plausch mit Freunden. Im Obergeschoss befindet sich das Wohnzimmer und ein Schlafzimmer mit Begehbaren Kleiderschrank und Tageslicht-Duschbad. Im Dachgeschoß erwarten sie 2 Schlaf oder Gästezimmer und ein weiteres, großes Badezimmer. Der Keller bietet 2 Räume und platz für Arbeit, Beruf, Hobby und Familie.
Lage
Das wunderschön gelegene Mannheim-Feudenheim zählt durch die Kombination aus gehobener sowie familiärer Wohnlage, hervorragender Infrastruktur und optimaler Verkehrsanbindung zu den meistgesuchten Lagen Mannheims. Die Lage überzeugt durch Ihre unmittelbare Anbindung an die BAB, sowie die Nähe zur Mannheimer Innenstadt. Ärzte, Apotheken, Schulen, Kindergärten und alle Geschäfte des täglichen Bedarfs sind gut zu erreichen.
Dank dem angrenzenden Naturschutzgebiet, der direkten Neckarlage, sowie zahlreichen Sportanlagen verfügt Feudenheim über einen sehr hohen Familien und Freizeitwert.
Ausstattung
Das Haus kann nach ihren Wünschen und Fordernissen erstellt werden.
Standart sind Gäste WC im EG, Bad mit Dusche und Wanne,
Heizung als moderne Luft-Wasser-Wärmepumpe, Carport, 2 Vollgeschosse,
ausgebautes Dachgeschoss, Garten mit Südausrichtung, Keller. Ausführung KFW 70 Standart.
--Wir garantieren die Ausführung als Effizenzhaus 70 nach KFW-Richtlinie
--Wir garantieren vereinbarte Preise als Pauschalpreise über die zeit von 12 Monaten
--Wir stellen eine Bauzeitgarantie: die maximale Bauzeit beträgt 7 Monate
--Wir bieten eine Gewährleistung nach BGB mit 5 Jahren für die erbrachte Bauleistung
--Wir Schützen mit einer Bauwesenversicherung vor Elementarschäden, Diebstahl und Vanalismus
--Wir bieten ihnen eine maximale Qualitätskontrolle mit einer baubegleitenden DEKRA-Prüfung
Sonstige Angaben
Der Etwas andere Grundriss diese Hauses lässt auch Wohnen und arbeiten zu. Im EG ein Büro und WC. Gewohnt wird im OG und DG!!
Bitte haben Sie Verständnis, dass wir nur Anfragen mit Ihren vollständig ausgefüllten Adressdaten bearbeiten können
Das Haus kann nach ihren Wünschen und Fordernissen erstellt werden.
Standart sind Gäste WC im EG, Bad mit Dusche und Wanne,
Heizung als moderne Luft-Wasser-Wärmepumpe(Fernwärme alternativ), Carport, 2 Vollgeschosse,
ausgebautes Dachgeschoss, Garten mit Südausrichtung, Keller. Ausführung KFW 70 Standart.
--Wir garantieren die Ausführung als Effizenzhaus 70 nach KFW-Richtlinie
--Wir garantieren vereinbarte Preise als Pauschalpreise über die zeit von 12 Monaten
--Wir stellen eine Bauzeitgarantie: die maximale Bauzeit beträgt 7 Monate
--Wir bieten eine Gewährleistung nach BGB mit 5 Jahren für die erbrachte Bauleistung
--Wir Schützen mit einer Bauwesenversicherung vor Elementarschäden, Diebstahl und Vanalismus
--Wir bieten ihnen eine maximale Qualitätskontrolle mit einer baubegleitenden DEKRA-Prüfung
Kartenansicht
Häuser Mannheim
Reihenhaus Feudenheim, massive Bauweise inkl. Keller, ca.180 m² Grundstück, Niedrigenergiehaus ist der Titel dieses Immobilienangebots. Mehr relevante Immobilienanzeigen zu Ihrer suche sind unter Mannheim zu finden.
Dem Landkreis Mannheim ist diese Immobilie zugeordnet. Geografisch kann dieses Objekt dem Bundesland Baden-Württemberg zugeordnet werden. Sollte Ihnen dieses Objekt gefallen, so kontaktieren Sie bitte CTT-Projektconsulting GmbH Ansprechpartner Thomas Jung, Carl-Rheuter str. 1 (Geb. 372) in 681305 Mannheim.
Synonyme zur Suche Mannheim Häuser:
Mannheim Hausangebote, Haus Mannheim, Häuser Mannheim

