Reihenendhaus Feudenheim, massive Bauweise inkl. Keller und ca. 220 m²Grundstück, Niedrigenergiehaus
Haus zum kaufen in 68259 Mannheim
PLZ /Ort:
Kaufpreis:
Wohnfläche:
Zimmer:
Grundstücksfl.:
Flächen
Wohnfläche:
115,00 m²
Grundstücksfläche:
220,00 m²
Gartenfläche:
130,00 m²
Kellerfläche:
40,00 m²
Preise
Kaufpreis:
393.000,00 €
Vermittl.-Provision:
keine
Kamin
klimatisiert
Gartennutzung
Kabel/Sat/TV
barrierefrei
Wasch/Trockenraum
Rolladen
Objektbeschreibung
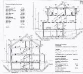
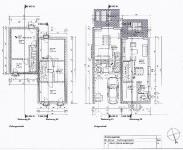
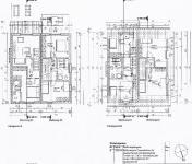
Das Massiv gebaute Haus hat platz für eine 5 Köpfige Familie und bietet in 3 Kellerräumen noch ausreichend Stauraum für Arbeit und Hobby. Das EG hat einen großen hellen Wohn/Essbereich mit Zugang zu der nach Süden gerichteten Terrasse und Garten, eine angenehm große Küche und natürlich ein Gäste-WC. Im OG finden 2 Schlafzimmer und das ansprechend große Tageslichtbad platz. Im Vollisolierten Dachgeschoß sind 2 weitere große Zimmer.
Lage
Das wunderschön gelegene Mannheim-Feudenheim zählt durch die Kombination aus gehobener sowie familiärer Wohnlage, hervorragender Infrastruktur und optimaler Verkehrsanbindung zu den meistgesuchten Lagen Mannheims. Die Lage überzeugt durch Ihre unmittelbare Anbindung an die BAB, sowie die Nähe zur Mannheimer Innenstadt. Ärzte, Apotheken, Schulen, Kindergärten und alle Geschäfte des täglichen Bedarfs sind gut zu erreichen.
Dank dem angrenzenden Naturschutzgebiet, der direkten Neckarlage, sowie zahlreichen Sportanlagen verfügt Feudenheim über einen sehr hohen Familien und Freizeitwert.
Ausstattung
Das Haus kann nach ihren Wünschen und Fordernissen erstellt werden.
Standart sind Gäste WC im EG, Tageslichtbad mit Dusche und Wanne,
Heizung als moderne Luft-Wasser-Wärmepumpe, Warmwasser-Solaranlage Carport, 2 Vollgeschosse,
ausgebautes Dachgeschoss, Keller. Ausführung KFW 70 Standart, Garten mit Südausrichtung
--Wir garantieren die Ausführung als Effizenzhaus 70 nach KFW-Richtlinie
--Wir garantieren vereinbarte Preise als Pauschalpreise über die zeit von 12 Monaten
--Wir stellen eine Bauzeitgarantie: die maximale Bauzeit beträgt 7 Monate
--Wir bieten eine Gewährleistung nach BGB mit 5 Jahren für die erbrachte Bauleistung
--Wir Schützen mit einer Bauwesenversicherung vor Elementarschäden, Diebstahl und Vanalismus
--Wir bieten ihnen eine maximale Qualitätskontrolle mit einer baubegleitenden DEKRA-Prüfung
Sonstige Angaben
Das Haus kann nach ihren Wünschen und Fordernissen erstellt werden.
Standart sind Gäste WC im EG, Tageslichtbad mit Dusche und Wanne,
Heizung als moderne Luft-Wasser-Wärmepumpe(Fernwärme alternativ), Carport, 2 Vollgeschosse,
ausgebautes Dachgeschoss, Garten mit Südausrichtung, Keller. Ausführung KFW 70 Standart.
--Wir garantieren die Ausführung als Effizenzhaus 70 nach KFW-Richtlinie
--Wir garantieren vereinbarte Preise als Pauschalpreise über die zeit von 12 Monaten
--Wir stellen eine Bauzeitgarantie: die maximale Bauzeit beträgt 7 Monate
--Wir bieten eine Gewährleistung nach BGB mit 5 Jahren für die erbrachte Bauleistung
--Wir Schützen mit einer Bauwesenversicherung vor Elementarschäden, Diebstahl und Vanalismus
--Wir bieten ihnen eine maximale Qualitätskontrolle mit einer baubegleitenden DEKRA-Prüfung
Kartenansicht
Häuser Mannheim
Reihenendhaus Feudenheim, massive Bauweise inkl. Keller und ca. 220 m²Grundstück, Niedrigenergiehaus ist der Titel dieses Immobilienangebots. Mehr relevante Immobilienanzeigen zu Ihrer suche sind unter Mannheim zu finden.
Dem Landkreis Mannheim ist diese Immobilie zugeordnet. Geografisch kann dieses Objekt dem Bundesland Baden-Württemberg zugeordnet werden. Sollte Ihnen dieses Objekt gefallen, so kontaktieren Sie bitte CTT-Projektconsulting GmbH Ansprechpartner Thomas Jung, Carl-Rheuter str. 1 (Geb. 372) in 681305 Mannheim.
Synonyme zur Suche Mannheim Häuser:
Mannheim Hausangebote, Haus Mannheim, Häuser Mannheim

