Traumvilla sehr nahe am Meer
Haus zum kaufen in 30740 San Pedro del Pinatar
PLZ /Ort:
Kaufpreis:
Wohnfläche:
Zimmer:
Grundstücksfl.:
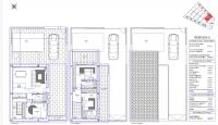
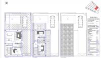
Flächen
Wohnfläche:
99,00 m²
Nutzfläche:
13,00 m²
Gesamtfläche:
112,00 m²
Grundstücksfläche:
162,00 m²
Preise
Kaufpreis:
420.000,00 €
Gartennutzung
barrierefrei
Swimmingpool
Objektbeschreibung
Diese spektakuläre Villa mit exklusivem Design kann Ihnen gehören. Diese Villa befindet sich in einer der besten Gegenden von San Pedro del Pinatar, in einem Neubaugebiet, in der Nähe von Supermärkten, Zugang zur Autobahn, verschiedenen Stränden und geschützten Naturgebieten.
Diese Villa ist ein echter Luxus. Sie ist das ideale Haus für alle, die ein geräumiges Haus mit großen Fenstern suchen, die viel Licht hereinlassen und über einen sehr schönen Pool verfügt.
Diese Villa wurde von einem der renommiertesten Bauunternehmen der Gegend gebaut und die Verfügbarkeit ist sehr begrenzt.
Lage
In der Nähe spektakulärer Strände und des Zentrums einer modernen Stadt mit Einkaufszentren und Naturräumen.
Prestigeträchtige Lage: Diese Villas liegwn 22 km vom Flughafen Murcia, 50 km vom Flughafen Alicante, 15 km vom Bahnhof und 1,9 km vom Mittelmeer entfernt.
Ausstattung
GRUNDLAGEN UND STRUKTUR
Fundament und Struktur aus Stahlbeton gemäß CTE (Technical Building Code).
FASSADE UND WANDTEILE
Fassadenverkleidung mit äußerer Trennwand aus 11 cm starkem Keramikblock und innenliegender Gipskartonplatte, mit Wärme- und Schalldämmung, gemäß CTE.
Innenwände aus Gipskarton mit beidseitig aufgespritzter Putzbeschichtung.
Fassade mit einer Kombination aus einlagigem Feinputzmörtel mit Kunststofffarbe und Keramiksteinzeug.
SOLARIUM
Optional.
Gehwege und Fliesen
Porzellanböden im Innenbereich, im Garten und auf der Terrasse.
Badezimmer und Küche mit Feinsteinzeugfliesen gefliest.
AUSSENSCHREICHEREI UND SCHLOSSER
PVC-Außenschreinereiarbeiten mit Schiebepaneelen mit Thermoverschluss und motorisierten Thermo-Aluminiumjalousien an den großen Fenstern, der Rest sind Thermo-Aluminiumjalousien. Verbund-Doppelverglasung auf Balkonen.
Dreh-Kipp-Fenster in Badezimmern.
Außengartentüren aus thermolackierten Metallprofilen, Design nach Richtung.
HEIZUNG UND KLIMAANLAGE
Vorinstallation einer Abluftklimaanlage pro Anlage.
POOL und GARTEN
Schwimmbad aus Stahlbeton
Inklusive Edelstahldusche, verstärktem Spritzbetontank sowie Wand- und Bodenbelag mit Fliesen. Komplette Debugging-Ausrüstung. LED-Strahler.
Parkplatz pro Haus.
Laut CTE ein aerothermisches Warmwassersystem.
Klare Duschwände aus Sicherheitsglas in beiden Badezimmern.
Außenhahn im Garten.
ELEKTRIZITÄT UND TELEKOMMUNIKATION
Allgemeine Schutztabelle. 9 Verteilerkreise. 4 TV-Punkte. Antenne für DTT gemäß Telekommunikationsprojekt. Vorinstallation für Glasfaser. Mechanismen Modell Simón 82 oder ähnlich, weiß.
TV-Anschluss in allen Schlafzimmern und im Garten.
Video-Gegensprechanlage mit Innenmonitor mit 7-Zoll-Farbbildschirm zur Steuerung des Fußgängertors im Garten.
Komplette Innenbeleuchtung mit LEDs (außer Zimmerlampen). Wandleuchten an Außenfassaden, LED-Strahler
in die Gartenmauer integriert.
Installation von Photovoltaik-Solarmodulen.
Vorinstallation für Markisen an Fassaden
HEIZUNG UND KLIMAANLAGE
Vorinstallation einer Abluftklimaanlage pro Anlage.
POOL und GARTEN
Stahlbetonbecken. Es umfasst eine Edelstahldusche, einen Spritzbetontank mit Verstärkung sowie Wand- und Bodenbelag mit Fliesen. Komplette Debugging-Ausrüstung. LED-Strahler.
Parkplatz pro Haus.
DEKORATION UND MALEREI
Glatte weiße Kunststofffarbe an Wänden und Decken. Installationsdurchgangsbereiche mit laminiertem Putz. Badezimmerdecke mit laminierter Gipskartonplatte mit dekorativem Vinyl.
KÜCHE
Designerküche mit integriertem Kühlschrank und Geschirrspüler. Scharniere mit Bremse. Metallgriffe. Blum Motion Schubladenelemente.
Arbeitsplatte aus synthetischem Marmor oder ähnlichem.
Balay-Geräte inklusive (Induktionskochfeld, Säulenofen und Mikrowelle, Dunstabzugshaube, Kühlschrank usw.)
in der Küche integrierter Geschirrspüler und Waschmaschine)
Der Energieausweis ist in Bearbeitung!
Sonstige Angaben
Bitte wenden Sie sich bei Fragen und einem persönlichen Besichtigungswunsch vertrauensvoll an uns.
Wir können Ihnen zu den Objekten in Spanien alle Informationen liefern. Wir bieten Ihnen einen perfekten Rundumservice ab dem Besichtigungstermin bis zum Verkauf der geprüften Immobilie.
Haben Sie Interesse an weiteren spanischen Immobilien? – Wir haben noch über 800 Angebote offen.
Besuchen Sie uns auf unserer Homepage unter
www.immomarkt-24.de
Sie erreichen uns wie folgt:
Tel.: +49 2241 / 95 96 00
Oder unter
info@immomarkt-24.de
Wir freuen uns schon auf Sie!
Ihr Makler mit Herz und Seele
Kartenansicht
Häuser
Traumvilla sehr nahe am Meer ist der Titel dieses Immobilienangebots. Die NewHome Immobiliensuchmaschine mit Miet- und Kaufobjekten hat dieses Objekt der Seite zugeordnet.
Der hat ähnliche Immobilien aufgelistet. Das zugewiesene Bundesland dieses Immobilieninserats ist . Der Inserent immomarkt24 UG Ansprechpartner Andre Bergmann, Scherengasse 25 in 53773 Hennef hat noch weitere Immobilien bei NewHome inseriert.
Synonyme zur Suche Häuser:
Hausangebote, Haus, Häuser

